Woning Händelstraat 32 Venray

Händelstraat 32, 5802HM Venray

Ontvang updates voor Brukske 1

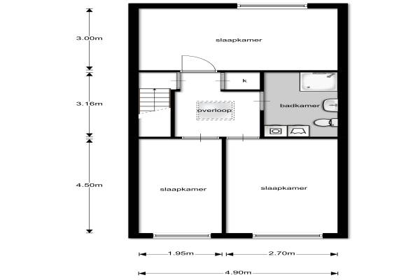
Het adres van deze woning uit 1972 is Händelstraat 32 te Venray. Het pand heeft een oppervlakte van 102m² en een perceeloppervlakte van 172m² en heeft 4 kamers kamers waarvan 3 slaapkamers. De geschatte waarde van deze woning is € 145.000.

Bekijk alle woningen in Brukske 1

Gegevens van Eengezinswoning, tussenwoning

Bouwjaar
1972
Geschatte waarde
€ 145.000
Oppervlakte
102 m2
Inhoud
390 m3
Aantal kamers
4 kamers
Slaapkamers
3
Badkamers
1 badkamer en 1 apart toilet
Soort bouw
Bestaande bouw
Eigendomssituatie
Volle eigendom
Ligging
In woonwijk
Tuin
Achtertuin
Achtertuin
48 m² (10m diep en 4,75m breed)

Voorzieningen in de buurt

Boodschappen0,9 km
Grote supermarkt0,8 km
Cafetaria0,9 km
Restaurant1,5 km
Huisarts1,3 km
Ziekenhuis2,9 km
Kinderdagverblijf0,7 km
BSO0,9 km
Alle voorzieningen in Brukske 1

Binnenkijken bij Händelstraat 32 te Venray

Meer meldingen in deze omgeving

Binnenkijken bij
Dinsdag 11-11-2025
Allegrostraat 24, 5802GH Venray

Nieuw bedrijf
Oktober 2025
Händelstraat 58, 5802HN Venray

Binnenkijken bij
Zondag 19-10-2025
Beethovenstraat 43, 5802GT Venray

Nieuw bedrijf
Oktober 2025
Beethovenstraat 16, 5802GS Venray

Nieuw bedrijf
Oktober 2025
Ravelstraat 40, 5802JC Venray

Nieuw bedrijf
Oktober 2025
Beethovenstraat 16, 5802GS Venray

Binnenkijken bij
Donderdag 2-10-2025
Ouverturestraat 28, 5802EM Venray

Onroerend goed
Vrijdag 19-9-2025
Plataanstraat 5, 5802EH Venray

Direct een e-mail ontvangen bij nieuwe meldingen in deze regio?

Meld je dan GRATIS aan voor de Oozo Alert service voor Brukske 1

Instellen

Meer nieuws in Brukske 1

Weten hoe eenvoudig het is om af te vallen? Zonder pillen en smeersels en zonder je in het zweet te werken!
Kijk op eenvoudig-afvallen.nl

© 2012 - 2025 OOZO.nl - info@oozo.nl - Gegevens verwijderen? | Disclaimer | Privacy statement