Woning Sneeuwklokje 11 Venray

Sneeuwklokje 11, 5803LK Venray

Ontvang updates voor Landweert 3

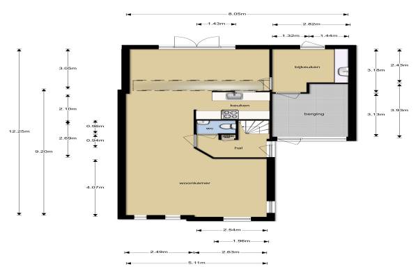
Het adres van deze woning uit 1993 is Sneeuwklokje 11 te Venray. Het pand heeft een oppervlakte van 130m² en een perceeloppervlakte van 254m² en heeft 5 kamers kamers waarvan 4 slaapkamers. De geschatte waarde van deze woning is € 249.500.

Bekijk alle woningen in Landweert 3

Gegevens van Eengezinswoning, geschakelde 2-onder-1-kapwoning

Bouwjaar
1993
Geschatte waarde
€ 249.500
Oppervlakte
130 m2
Inhoud
480 m3
Aantal kamers
5 kamers
Slaapkamers
4
Badkamers
1 badkamer en 1 apart toilet
Soort bouw
Bestaande bouw
Eigendomssituatie
Volle eigendom
Tuin
Achtertuin en voortuin

Voorzieningen in de buurt

Boodschappen0,5 km
Grote supermarkt0,5 km
Cafetaria0,6 km
Restaurant1,8 km
Huisarts0,7 km
Ziekenhuis3,3 km
Kinderdagverblijf0,3 km
BSO0,3 km
Alle voorzieningen in Landweert 3

Binnenkijken bij Sneeuwklokje 11 te Venray

Meer meldingen in deze omgeving

Nieuw bedrijf
Januari 2026
Wolfskers 24, 5803LX Venray

Binnenkijken bij
Woensdag 21-1-2026
Zilverschoon 3, 5803MA Venray

Binnenkijken bij
Donderdag 15-1-2026
Fluitekruid 50, 5803HP Venray

Binnenkijken bij
Woensdag 31-12-2025
Wolfskers 37, 5803LX Venray

Nieuw bedrijf
December 2025
Zilverschoon 1, 5803MA Venray

Faillissement
Dinsdag 9-12-2025
Sleutelbloem 19, 5803KG Venray

Faillissement
Dinsdag 9-12-2025
Sleutelbloem 19, 5803KG Venray

Binnenkijken bij
Woensdag 19-11-2025
Penningkruid 9, 5803KP Venray

Direct een e-mail ontvangen bij nieuwe meldingen in deze regio?

Meld je dan GRATIS aan voor de Oozo Alert service voor Landweert 3

Instellen

Meer nieuws in Landweert 3

Weten hoe eenvoudig het is om af te vallen? Zonder pillen en smeersels en zonder je in het zweet te werken!
Kijk op eenvoudig-afvallen.nl

© 2012 - 2026 OOZO.nl - info@oozo.nl - Gegevens verwijderen? | Disclaimer | Privacy statement