Woning Pinksterbloem 21 Venray

Pinksterbloem 21, 5803KL Venray

Ontvang updates voor Landweert 3

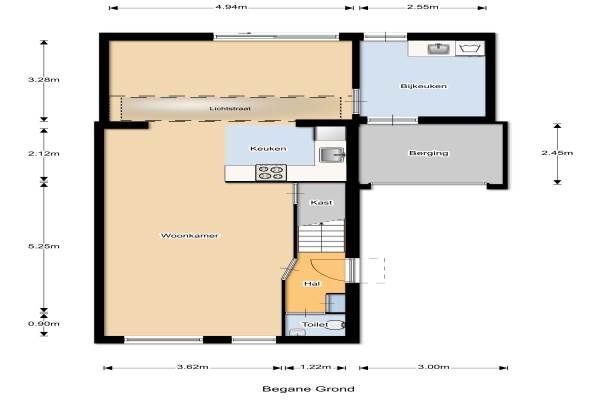
Het adres van deze woning uit 1992 is Pinksterbloem 21 te Venray. Het pand heeft een oppervlakte van 100m² en een perceeloppervlakte van 200m² en heeft 4 kamers kamers waarvan 3 slaapkamers. De geschatte waarde van deze woning is € 215.000.

Bekijk alle woningen in Landweert 3

Gegevens van Eengezinswoning, 2-onder-1-kapwoning

Bouwjaar
1992
Geschatte waarde
€ 215.000
Oppervlakte
100 m2
Inhoud
355 m3
Aantal kamers
4 kamers
Slaapkamers
3
Badkamers
1 badkamer en 1 apart toilet
Soort bouw
Bestaande bouw
Eigendomssituatie
Volle eigendom
Ligging
In woonwijk
Tuin
Achtertuin en voortuin
Achtertuin
80 m² (10m diep en 8m breed)

Voorzieningen in de buurt

Boodschappen0,5 km
Grote supermarkt0,5 km
Cafetaria0,6 km
Restaurant1,8 km
Huisarts0,7 km
Ziekenhuis3,3 km
Kinderdagverblijf0,3 km
BSO0,3 km
Alle voorzieningen in Landweert 3

Binnenkijken bij Pinksterbloem 21 te Venray

Meer meldingen in deze omgeving

Nieuw bedrijf
December 2025
Zilverschoon 1, 5803MA Venray

Faillissement
Dinsdag 9-12-2025
Sleutelbloem 19, 5803KG Venray

Faillissement
Dinsdag 9-12-2025
Sleutelbloem 19, 5803KG Venray

Binnenkijken bij
Zondag 7-12-2025
Wolfskers 37, 5803LX Venray

Binnenkijken bij
Woensdag 19-11-2025
Penningkruid 9, 5803KP Venray

Binnenkijken bij
Vrijdag 14-11-2025
Ridderspoor 3, 5803KC Venray

Binnenkijken bij
Dinsdag 11-11-2025
Vingerhoedskruid 43, 5803KT Venray

Binnenkijken bij
Donderdag 16-10-2025
Vingerhoedskruid 47, 5803KT Venray

Direct een e-mail ontvangen bij nieuwe meldingen in deze regio?

Meld je dan GRATIS aan voor de Oozo Alert service voor Landweert 3

Instellen

Meer nieuws in Landweert 3

Weten hoe eenvoudig het is om af te vallen? Zonder pillen en smeersels en zonder je in het zweet te werken!
Kijk op eenvoudig-afvallen.nl

© 2012 - 2025 OOZO.nl - info@oozo.nl - Gegevens verwijderen? | Disclaimer | Privacy statement