Woning Weg in den Berg 4 Venray

Weg in den Berg 4, 5801ST Venray

Ontvang updates voor Veltum 1

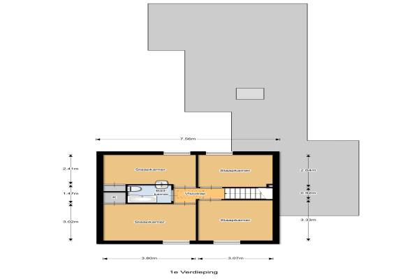
Het adres van deze woning uit 1969 is Weg in den Berg 4 te Venray. Het pand heeft een oppervlakte van 130m² en een perceeloppervlakte van 340m² en heeft 6 kamers kamers waarvan 4 slaapkamers. De geschatte waarde van deze woning is € 239.000.

Bekijk alle woningen in Veltum 1

Gegevens van Eengezinswoning, geschakelde woning

Bouwjaar
1969
Geschatte waarde
€ 239.000
Oppervlakte
130 m2
Inhoud
530 m3
Aantal kamers
6 kamers
Slaapkamers
4
Badkamers
1 badkamer en 1 apart toilet
Soort bouw
Bestaande bouw
Eigendomssituatie
Volle eigendom
Ligging
In centrum
Tuin
Achtertuin en voortuin
Achtertuin
150 m² (15m diep en 10m breed)

Voorzieningen in de buurt

Boodschappen0,5 km
Grote supermarkt0,3 km
Cafetaria0,5 km
Restaurant0,7 km
Huisarts0,6 km
Ziekenhuis1,5 km
Kinderdagverblijf0,5 km
BSO0,4 km
Alle voorzieningen in Veltum 1

Binnenkijken bij Weg in den Berg 4 te Venray

Meer meldingen in deze omgeving

Binnenkijken bij
Woensdag 29-10-2025
Langstraat 162, 5801AG Venray

Nieuw bedrijf
Oktober 2025
Haammakerstraat 16, 5801TB Venray

Nieuw bedrijf
Oktober 2025
Goudsmidstraat 10, 5801RG Venray

Nieuw bedrijf
Oktober 2025
Veltumse Kleffen 296, 5801SN Venray

Binnenkijken bij
Woensdag 1-10-2025
Veltumse Kleffen 36, 5801SG Venray

Binnenkijken bij
Woensdag 24-9-2025
Haammakerstraat 5, 5801TA Venray

112 melding
Zaterdag 13-9-2025 om 10:27
Goudsmidstraat, Venray

112 melding
Zaterdag 13-9-2025 om 10:27
Goudsmidstraat, Venray

Direct een e-mail ontvangen bij nieuwe meldingen in deze regio?

Meld je dan GRATIS aan voor de Oozo Alert service voor Veltum 1

Instellen

Meer nieuws in Veltum 1

Weten hoe eenvoudig het is om af te vallen? Zonder pillen en smeersels en zonder je in het zweet te werken!
Kijk op eenvoudig-afvallen.nl

© 2012 - 2025 OOZO.nl - info@oozo.nl - Gegevens verwijderen? | Disclaimer | Privacy statement