Woning Gratenstraat 7 Venray

Gratenstraat 7, 5801RX Venray

Ontvang updates voor Veltum 1

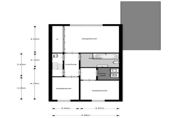
Het adres van deze woning uit 1972 is Gratenstraat 7 te Venray. Het pand heeft 5 kamers kamers waarvan 3 slaapkamers. De geschatte waarde van deze woning is € 229.000.

Bekijk alle woningen in Veltum 1

Gegevens van Eengezinswoning, 2-onder-1-kapwoning

Bouwjaar
1972
Geschatte waarde
€ 229.000
Oppervlakte
0 m2
Inhoud
400 m3
Aantal kamers
5 kamers
Slaapkamers
3
Badkamers
1 badkamer en 1 apart toilet
Soort bouw
Bestaande bouw
Eigendomssituatie
Volle eigendom
Ligging
Aan rustige weg en in woonwijk
Tuin
Achtertuin en voortuin
Achtertuin
37 m² (7,4m diep en 5m breed)

Voorzieningen in de buurt

Boodschappen0,5 km
Grote supermarkt0,3 km
Cafetaria0,5 km
Restaurant0,7 km
Huisarts0,6 km
Ziekenhuis1,5 km
Kinderdagverblijf0,5 km
BSO0,4 km
Alle voorzieningen in Veltum 1

Binnenkijken bij Gratenstraat 7 te Venray

Meer meldingen in deze omgeving

Binnenkijken bij
Zaterdag 14-3-2026
Hubertusstraat 13, 5801RV Venray

Nieuw bedrijf
Maart 2026
Gratenstraat 20, 5801RX Venray

Binnenkijken bij
Donderdag 12-3-2026
Haammakerstraat 274, 5801TH Venray

112 melding
Zaterdag 7-3-2026 om 16:31
Gratenstraat, 5801RX Venray

112 melding
Zaterdag 7-3-2026 om 12:23
Veltumse Kleffen, Venray

Nieuw bedrijf
Februari 2026
Veltumse Kleffen 172, 5801SL Venray

Binnenkijken bij
Zondag 22-2-2026
Hubertusstraat 15, 5801RV Venray

112 melding
Maandag 9-2-2026 om 20:16
Haammakerstraat, Venray

Direct een e-mail ontvangen bij nieuwe meldingen in deze regio?

Meld je dan GRATIS aan voor de Oozo Alert service voor Veltum 1

Instellen

Meer nieuws in Veltum 1

Weten hoe eenvoudig het is om af te vallen? Zonder pillen en smeersels en zonder je in het zweet te werken!
Kijk op eenvoudig-afvallen.nl

© 2012 - 2026 OOZO.nl - info@oozo.nl - Gegevens verwijderen? | Disclaimer | Privacy statement