Woning Sportlaan 266 Vlaardingen

Sportlaan 266, 3135GZ Vlaardingen

Ontvang updates voor Babberspolder Noord

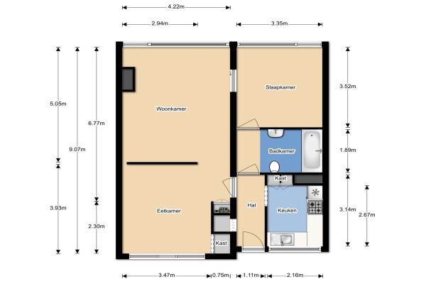
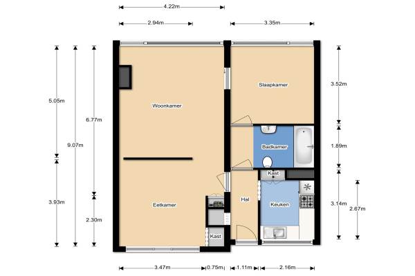
Het adres van deze woning uit 1955 is Sportlaan 266 te Vlaardingen. Het pand heeft een oppervlakte van 71m² en heeft 3 kamers kamers waarvan 1 slaapkamers. De geschatte waarde van deze woning is € 125.000.

Bekijk alle woningen in Babberspolder Noord

Gegevens van Galerijflat (appartement)

Bouwjaar
1955
Geschatte waarde
€ 125.000
Oppervlakte
71 m2
Inhoud
223 m3
Aantal kamers
3 kamers
Slaapkamers
1
Soort bouw
Bestaande bouw
Eigendomssituatie
Eigendom belast met erfpacht
Ligging
Aan rustige weg, in woonwijk, vrij uitzicht en open ligging

Voorzieningen in de buurt

Boodschappen0,4 km
Grote supermarkt0,4 km
Cafetaria0,4 km
Restaurant0,4 km
Huisarts1,0 km
Ziekenhuis2,0 km
Kinderdagverblijf0,6 km
BSO0,5 km
Alle voorzieningen in Babberspolder Noord

Binnenkijken bij Sportlaan 266 te Vlaardingen

Meer meldingen in deze omgeving

112 melding
Woensdag 17-12-2025 om 10:14
Sportlaan, 3135GW Vlaardingen

112 melding
Woensdag 17-12-2025 om 09:12
Sportlaan, 3135GX Vlaardingen

Binnenkijken bij
Dinsdag 16-12-2025
Burgemeester Kieboomlaan 16, 3135WS Vlaardingen

Nieuw bedrijf
December 2025
Burgemeester Luijerinksingel 19, 3135KK Vlaardingen

112 melding
Maandag 15-12-2025 om 15:04
Burgemeester A. van Walsumlaan, 3135WK Vlaardingen

112 melding
Dinsdag 9-12-2025 om 22:22
Burgemeester Kieboomlaan, 3135WS Vlaardingen

Nieuw bedrijf
December 2025
Kwartellaan 33, 3135KC Vlaardingen

Binnenkijken bij
Zaterdag 6-12-2025
Sportlaan 12, 3135GV Vlaardingen

Direct een e-mail ontvangen bij nieuwe meldingen in deze regio?

Meld je dan GRATIS aan voor de Oozo Alert service voor Babberspolder Noord

Instellen

Meer nieuws in Babberspolder Noord

Weten hoe eenvoudig het is om af te vallen? Zonder pillen en smeersels en zonder je in het zweet te werken!
Kijk op eenvoudig-afvallen.nl

© 2012 - 2025 OOZO.nl - info@oozo.nl - Gegevens verwijderen? | Disclaimer | Privacy statement