Woning Burgemeester Kieboomlaan 2 Vlaardingen

Burgemeester Kieboomlaan 2, 3135WS Vlaardingen

Ontvang updates voor Babberspolder Noord

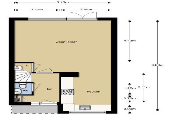
Het adres van deze woning uit 2000 is Burgemeester Kieboomlaan 2 te Vlaardingen. Het pand heeft een oppervlakte van 97m² en een perceeloppervlakte van 155m² en heeft 5 kamers kamers waarvan 4 slaapkamers. De geschatte waarde van deze woning is € 259.000.

Bekijk alle woningen in Babberspolder Noord

Gegevens van Eengezinswoning, hoekwoning

Bouwjaar
2000
Geschatte waarde
€ 259.000
Oppervlakte
97 m2
Inhoud
314 m3
Aantal kamers
5 kamers
Slaapkamers
4
Badkamers
1 badkamer en 1 apart toilet
Soort bouw
Bestaande bouw
Eigendomssituatie
Volle eigendom
Ligging
In woonwijk
Tuin
Achtertuin en voortuin
Achtertuin
64 m² (12,5m diep en 5,15m breed)

Voorzieningen in de buurt

Boodschappen0,4 km
Grote supermarkt0,4 km
Cafetaria0,4 km
Restaurant0,4 km
Huisarts1,0 km
Ziekenhuis2,0 km
Kinderdagverblijf0,6 km
BSO0,5 km
Alle voorzieningen in Babberspolder Noord

Binnenkijken bij Burgemeester Kieboomlaan 2 te Vlaardingen

Meer meldingen in deze omgeving

112 melding
Zaterdag 20-12-2025 om 18:01
Van Linden Van den Heuvellsingel, 3135KH Vlaardingen

112 melding
Woensdag 17-12-2025 om 10:14
Sportlaan, 3135GW Vlaardingen

112 melding
Woensdag 17-12-2025 om 09:12
Sportlaan, 3135GX Vlaardingen

Binnenkijken bij
Dinsdag 16-12-2025
Burgemeester Kieboomlaan 16, 3135WS Vlaardingen

Nieuw bedrijf
December 2025
Burgemeester Luijerinksingel 19, 3135KK Vlaardingen

112 melding
Maandag 15-12-2025 om 15:04
Burgemeester A. van Walsumlaan, 3135WK Vlaardingen

112 melding
Dinsdag 9-12-2025 om 22:22
Burgemeester Kieboomlaan, 3135WS Vlaardingen

Nieuw bedrijf
December 2025
Kwartellaan 33, 3135KC Vlaardingen

Direct een e-mail ontvangen bij nieuwe meldingen in deze regio?

Meld je dan GRATIS aan voor de Oozo Alert service voor Babberspolder Noord

Instellen

Meer nieuws in Babberspolder Noord

Weten hoe eenvoudig het is om af te vallen? Zonder pillen en smeersels en zonder je in het zweet te werken!
Kijk op eenvoudig-afvallen.nl

© 2012 - 2025 OOZO.nl - info@oozo.nl - Gegevens verwijderen? | Disclaimer | Privacy statement