Woning van Hoornbeekstraat 17 Vlaardingen

van Hoornbeekstraat 17, 3135LJ Vlaardingen

Ontvang updates voor Babberspolder Oost

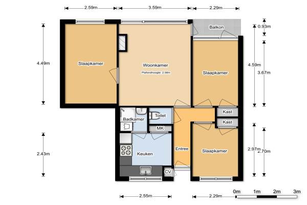
Het adres van deze woning uit 1956 is van Hoornbeekstraat 17 te Vlaardingen. Het pand heeft een oppervlakte van 60m² en heeft 4 kamers kamers waarvan 3 slaapkamers. De geschatte waarde van deze woning is € 109.500.

Bekijk alle woningen in Babberspolder Oost

Gegevens van Galerijflat (appartement)

Bouwjaar
1956
Geschatte waarde
€ 109.500
Oppervlakte
60 m2
Inhoud
190 m3
Aantal kamers
4 kamers
Slaapkamers
3
Badkamers
1 badkamer en 1 apart toilet
Soort bouw
Bestaande bouw
Eigendomssituatie
Gemeentelijk eigendom belast met erfpacht
Ligging
In woonwijk

Voorzieningen in de buurt

Boodschappen0,4 km
Grote supermarkt0,4 km
Cafetaria0,4 km
Restaurant0,5 km
Huisarts0,6 km
Ziekenhuis2,1 km
Kinderdagverblijf0,3 km
BSO0,3 km
Alle voorzieningen in Babberspolder Oost

Binnenkijken bij van Hoornbeekstraat 17 te Vlaardingen

Meer meldingen in deze omgeving

Binnenkijken bij
Dinsdag 2-12-2025
Primulahof 64, 3135EP Vlaardingen

112 melding
Maandag 1-12-2025 om 16:10
Van Maanenstraat, 3135RV Vlaardingen

112 melding
Maandag 1-12-2025 om 15:42
Van Maanenstraat, 3135RV Vlaardingen

112 melding
Zondag 30-11-2025 om 19:49
Johan de Wittstraat, 3135RR Vlaardingen

112 melding
Zondag 30-11-2025 om 12:39
Salviastraat, 3135EM Vlaardingen

112 melding
Zaterdag 29-11-2025 om 19:03
Dotterbloemstraat, 3135VD Vlaardingen

Binnenkijken bij
Vrijdag 28-11-2025
Salviastraat 36, 3135EM Vlaardingen

Binnenkijken bij
Vrijdag 28-11-2025
Johan de Wittstraat 39, 3135RH Vlaardingen

Direct een e-mail ontvangen bij nieuwe meldingen in deze regio?

Meld je dan GRATIS aan voor de Oozo Alert service voor Babberspolder Oost

Instellen

Meer nieuws in Babberspolder Oost

Weten hoe eenvoudig het is om af te vallen? Zonder pillen en smeersels en zonder je in het zweet te werken!
Kijk op eenvoudig-afvallen.nl

© 2012 - 2025 OOZO.nl - info@oozo.nl - Gegevens verwijderen? | Disclaimer | Privacy statement