Woning mr. L.A. Kesperweg 23 Vlaardingen

mr. L.A. Kesperweg 23, 3135BS Vlaardingen

Ontvang updates voor Babberspolder West

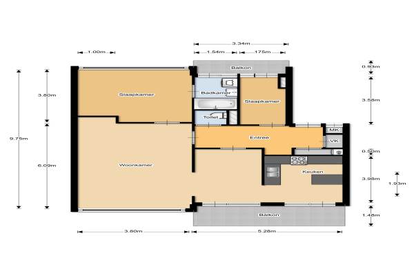
Het adres van deze woning uit 1957 is mr. L.A. Kesperweg 23 te Vlaardingen. Het pand heeft een oppervlakte van 80m² en heeft 3 kamers kamers waarvan 2 slaapkamers. De geschatte waarde van deze woning is € 150.000.

Bekijk alle woningen in Babberspolder West

Gegevens van Portiekflat (appartement)

Bouwjaar
1957
Geschatte waarde
€ 150.000
Oppervlakte
80 m2
Inhoud
240 m3
Aantal kamers
3 kamers
Slaapkamers
2
Badkamers
1 badkamer en 1 apart toilet
Soort bouw
Bestaande bouw
Eigendomssituatie
Volle eigendom
Ligging
Aan park, in woonwijk en vrij uitzicht

Voorzieningen in de buurt

Boodschappen0,5 km
Grote supermarkt0,6 km
Cafetaria0,5 km
Restaurant0,7 km
Huisarts0,7 km
Ziekenhuis2,6 km
Kinderdagverblijf0,3 km
BSO0,3 km
Alle voorzieningen in Babberspolder West

Binnenkijken bij mr. L.A. Kesperweg 23 te Vlaardingen

Meer meldingen in deze omgeving

112 melding
Zaterdag 29-11-2025 om 07:27
Antonie Duyckstraat, 3135AH Vlaardingen

Binnenkijken bij
Vrijdag 28-11-2025
Geraniumstraat 9, 3135XE Vlaardingen

Nieuw bedrijf
November 2025
Goudsesingel 39, 3135CA Vlaardingen

Nieuw bedrijf
November 2025
van Bleiswijkstraat 50C, 3135AM Vlaardingen

Nieuw bedrijf
November 2025
mr. L.A. Kesperweg 27A, 3135BS Vlaardingen

Nieuw bedrijf
November 2025
van Hogendorplaan 158A, 3135CK Vlaardingen

112 melding
Donderdag 27-11-2025 om 20:34
Van Limburg Stirumstraat, 3135NN Vlaardingen

112 melding
Woensdag 26-11-2025 om 04:12
Lyceumlaan, 3135CZ Vlaardingen

Direct een e-mail ontvangen bij nieuwe meldingen in deze regio?

Meld je dan GRATIS aan voor de Oozo Alert service voor Babberspolder West

Instellen

Meer nieuws in Babberspolder West

Weten hoe eenvoudig het is om af te vallen? Zonder pillen en smeersels en zonder je in het zweet te werken!
Kijk op eenvoudig-afvallen.nl

© 2012 - 2025 OOZO.nl - info@oozo.nl - Gegevens verwijderen? | Disclaimer | Privacy statement