Woning Boulevard De Ruyter 220 Vlissingen

Boulevard De Ruyter 220, 4381KH Vlissingen

Ontvang updates voor Oude Binnenstad

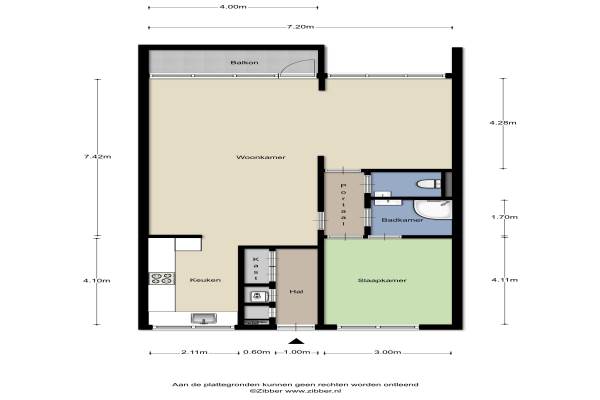
Het adres van deze woning uit 1969 is Boulevard De Ruyter 220 te Vlissingen. Het pand heeft een oppervlakte van 80m² en heeft 2 kamers kamers waarvan 1 slaapkamers. De geschatte waarde van deze woning is € 295.000.

Bekijk alle woningen in Oude Binnenstad

Gegevens van Galerijflat (appartement)

Bouwjaar
1969
Geschatte waarde
€ 295.000
Oppervlakte
80 m2
Inhoud
240 m3
Aantal kamers
2 kamers
Slaapkamers
1
Soort bouw
Bestaande bouw
Ligging
Aan water, vrij uitzicht en aan vaarwater

Voorzieningen in de buurt

Boodschappen0,3 km
Grote supermarkt0,6 km
Cafetaria0,2 km
Restaurant0,2 km
Huisarts0,7 km
Ziekenhuis1,5 km
Kinderdagverblijf0,5 km
BSO0,5 km
Alle voorzieningen in Oude Binnenstad

Binnenkijken bij Boulevard De Ruyter 220 te Vlissingen

Meer meldingen in deze omgeving

112 melding
Donderdag 1-1-2026 om 20:03
Spuistraat, Vlissingen

112 melding
Donderdag 1-1-2026 om 14:36
Paardenstraat, Vlissingen

112 melding
Donderdag 1-1-2026 om 10:02
Boulevard De Ruyter, Vlissingen

Binnenkijken bij
Donderdag 1-1-2026
Coosje Buskenstraat 70, 4381LG Vlissingen

Nieuw bedrijf
Januari 2026
Nieuwstraat 102, 4381CW Vlissingen

Nieuw bedrijf
Januari 2026
Molenstraat 61, 4381HW Vlissingen

Nieuw bedrijf
Januari 2026
Walstraat 124, 4381GS Vlissingen

Binnenkijken bij
Zondag 28-12-2025
Wilhelminastraat 49, 4381BN Vlissingen

Direct een e-mail ontvangen bij nieuwe meldingen in deze regio?

Meld je dan GRATIS aan voor de Oozo Alert service voor Oude Binnenstad

Instellen

Meer nieuws in Oude Binnenstad

Weten hoe eenvoudig het is om af te vallen? Zonder pillen en smeersels en zonder je in het zweet te werken!
Kijk op eenvoudig-afvallen.nl

© 2012 - 2026 OOZO.nl - info@oozo.nl - Gegevens verwijderen? | Disclaimer | Privacy statement