Woning Paul Krugerstraat 215 Vlissingen

Paul Krugerstraat 2-15, 4381WB Vlissingen

Ontvang updates voor Scheldestraat e.o.

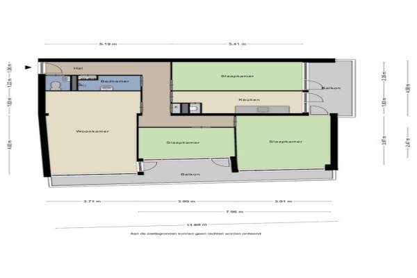
Het adres van deze woning uit 1973 is Paul Krugerstraat 215 te Vlissingen. Het pand heeft een oppervlakte van 96m² en heeft 4 kamers kamers waarvan 3 slaapkamers. De geschatte waarde van deze woning is € 229.000.

Bekijk alle woningen in Scheldestraat e.o.

Gegevens van Appartement

Bouwjaar
1973
Geschatte waarde
€ 229.000
Oppervlakte
96 m2
Inhoud
310 m3
Aantal kamers
4 kamers
Slaapkamers
3
Badkamers
1 badkamer en 1 apart toilet
Soort bouw
Bestaande bouw
Eigendomssituatie
Volle eigendom
Ligging
In centrum
Tuin
Balkon aanwezig

Voorzieningen in de buurt

Boodschappen0,2 km
Grote supermarkt0,5 km
Cafetaria0,2 km
Restaurant0,3 km
Huisarts0,4 km
Ziekenhuis1,1 km
Kinderdagverblijf0,3 km
BSO0,3 km
Alle voorzieningen in Scheldestraat e.o.

Binnenkijken bij Paul Krugerstraat 215 te Vlissingen

Meer meldingen in deze omgeving

Binnenkijken bij
Zaterdag 14-2-2026
Glacisstraat 15A, 4381RE Vlissingen

Binnenkijken bij
Zaterdag 7-2-2026
Singel 428, 4381VP Vlissingen

112 melding
Dinsdag 3-2-2026 om 19:08
Verkuijl Quakkelaarstraat, Vlissingen

112 melding
Maandag 2-2-2026 om 17:03
Verkuijl Quakkelaarstraat, Vlissingen

112 melding
Woensdag 28-1-2026 om 12:26
Verkuijl Quakkelaarstraat, Vlissingen

Nieuw bedrijf
Januari 2026
Verkuijl Quakkelaarstraat 5, 4381PH Vlissingen

Binnenkijken bij
Zondag 25-1-2026
Verkuijl Quakkelaarstraat 15, 4381PJ Vlissingen

Nieuw bedrijf
Januari 2026
Glacisstraat 45, 4381RG Vlissingen

Direct een e-mail ontvangen bij nieuwe meldingen in deze regio?

Meld je dan GRATIS aan voor de Oozo Alert service voor Scheldestraat e.o.

Instellen

Meer nieuws in Scheldestraat e.o.

Weten hoe eenvoudig het is om af te vallen? Zonder pillen en smeersels en zonder je in het zweet te werken!
Kijk op eenvoudig-afvallen.nl

© 2012 - 2026 OOZO.nl - info@oozo.nl - Gegevens verwijderen? | Disclaimer | Privacy statement