Woning Kenau Hasselaarstraat 533 Vlissingen

Kenau Hasselaarstraat 533, 4382AS Vlissingen

Ontvang updates voor Boulevards Bankert en Evertsen

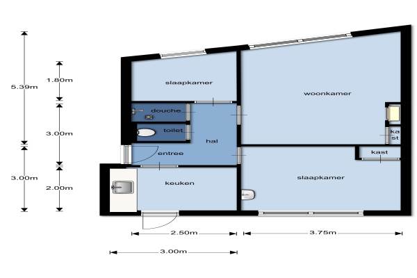
Het adres van deze woning uit 1952 is Kenau Hasselaarstraat 533 te Vlissingen. Het pand heeft een oppervlakte van 61m² en heeft 3 kamers kamers waarvan 2 slaapkamers. De geschatte waarde van deze woning is € 149.000.

Bekijk alle woningen in Boulevards Bankert en Evertsen

Gegevens van Benedenwoning (appartement)

Bouwjaar
1952
Geschatte waarde
€ 149.000
Oppervlakte
61 m2
Inhoud
183 m3
Aantal kamers
3 kamers
Slaapkamers
2
Badkamers
1 badkamer en 1 apart toilet
Soort bouw
Bestaande bouw
Eigendomssituatie
Volle eigendom
Ligging
Aan water
Tuin
Achtertuin
Achtertuin
70 m² (7,1m diep en 9,9m breed)

Voorzieningen in de buurt

Boodschappen0,8 km
Grote supermarkt0,7 km
Cafetaria0,1 km
Restaurant0,1 km
Huisarts1,0 km
Ziekenhuis1,4 km
Kinderdagverblijf0,9 km
BSO1,0 km
Alle voorzieningen in Boulevards Bankert en Evertsen

Binnenkijken bij Kenau Hasselaarstraat 533 te Vlissingen

Meer meldingen in deze omgeving

Nieuw bedrijf
Maart 2026
Kenau Hasselaarstraat 387, 4382AJ Vlissingen

Nieuw bedrijf
Maart 2026
Kenau Hasselaarstraat 387, 4382AJ Vlissingen

Binnenkijken bij
Donderdag 12-3-2026
Boulevard Bankert 668, 4382AC Vlissingen

Binnenkijken bij
Maandag 9-3-2026
Coosje Buskenstraat 75, 4381LB Vlissingen

Nieuw bedrijf
Maart 2026
Boulevard Bankert 114, 4382AC Vlissingen

Binnenkijken bij
Woensdag 25-2-2026
Boulevard Bankert 542, 4382AC Vlissingen

Binnenkijken bij
Donderdag 12-2-2026
Boulevard Bankert 382, 4382AC Vlissingen

Binnenkijken bij
Woensdag 11-2-2026
Kenau Hasselaarstraat 165, 4382AH Vlissingen

Direct een e-mail ontvangen bij nieuwe meldingen in deze regio?

Meld je dan GRATIS aan voor de Oozo Alert service voor Boulevards Bankert en Evertsen

Instellen

Meer nieuws in Boulevards Bankert en Evertsen

Weten hoe eenvoudig het is om af te vallen? Zonder pillen en smeersels en zonder je in het zweet te werken!
Kijk op eenvoudig-afvallen.nl

© 2012 - 2026 OOZO.nl - info@oozo.nl - Gegevens verwijderen? | Disclaimer | Privacy statement