Woning Verdilaan 100 Vlissingen

Verdilaan 100, 4384LG Vlissingen

Ontvang updates voor Paauwenburg West

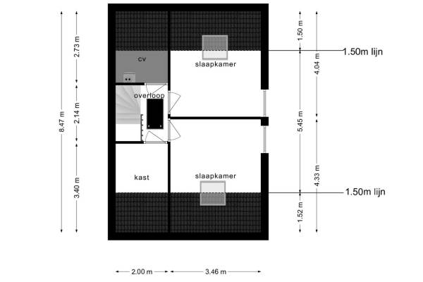
Het adres van deze woning uit 1994 is Verdilaan 100 te Vlissingen. Het pand heeft een oppervlakte van 129m² en een perceeloppervlakte van 349m² en heeft 4 kamers kamers waarvan 3 slaapkamers. De geschatte waarde van deze woning is € 479.000.

Bekijk alle woningen in Paauwenburg West

Gegevens van Geschakelde woning

Bouwjaar
1994
Geschatte waarde
€ 479.000
Oppervlakte
129 m2
Inhoud
533 m3
Aantal kamers
4 kamers
Slaapkamers
3
Badkamers
1 badkamer en 1 apart toilet
Soort bouw
Bestaande bouw
Eigendomssituatie
Volle eigendom
Ligging
Aan rustige weg en in woonwijk
Tuin
Tuin
Achtertuin
120 m² (10 meter diep en 14 meter breed)

Voorzieningen in de buurt

Boodschappen0,7 km
Grote supermarkt0,5 km
Cafetaria1,9 km
Restaurant0,7 km
Huisarts0,6 km
Ziekenhuis2,2 km
Kinderdagverblijf0,6 km
BSO0,6 km
Alle voorzieningen in Paauwenburg West

Binnenkijken bij Verdilaan 100 te Vlissingen

Meer meldingen in deze omgeving

Binnenkijken bij
Vrijdag 14-11-2025
De Mey van Streefkerklaan 2, 4384KL Vlissingen

Binnenkijken bij
Dinsdag 11-11-2025
Offenbachlaan 35, 4384MH Vlissingen

112 melding
Dinsdag 4-11-2025 om 16:37
Albert van Dalsumlaan, 4384JV Vlissingen

Binnenkijken bij
Donderdag 9-10-2025
Chopinlaan 129, 4384KX Vlissingen

Binnenkijken bij
Dinsdag 30-9-2025
Paauwenburgweg 1, 4384JA Vlissingen

Binnenkijken bij
Maandag 22-9-2025
Verdilaan 40, 4384LE Vlissingen

112 melding
Maandag 15-9-2025 om 19:32
Bachlaan, Vlissingen

Nieuw bedrijf
September 2025
Goeman Borgesiusstraat 7, 4384JL Vlissingen

Direct een e-mail ontvangen bij nieuwe meldingen in deze regio?

Meld je dan GRATIS aan voor de Oozo Alert service voor Paauwenburg West

Instellen

Meer nieuws in Paauwenburg West

Weten hoe eenvoudig het is om af te vallen? Zonder pillen en smeersels en zonder je in het zweet te werken!
Kijk op eenvoudig-afvallen.nl

© 2012 - 2025 OOZO.nl - info@oozo.nl - Gegevens verwijderen? | Disclaimer | Privacy statement