Woning Haydnlaan 10 Voorschoten

Haydnlaan 10, 2253CV Voorschoten

Ontvang updates voor Adegeest

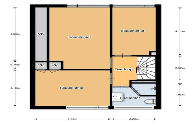
Het adres van deze woning uit 1970 is Haydnlaan 10 te Voorschoten. Het pand heeft een oppervlakte van 134m² en een perceeloppervlakte van 159m² en heeft 5 kamers kamers waarvan 4 slaapkamers. De geschatte waarde van deze woning is € 389.000.

Bekijk alle woningen in Adegeest

Gegevens van Eengezinswoning, tussenwoning

Bouwjaar
1970
Geschatte waarde
€ 389.000
Oppervlakte
134 m2
Inhoud
420 m3
Aantal kamers
5 kamers
Slaapkamers
4
Badkamers
1 badkamer
Soort bouw
Bestaande bouw
Eigendomssituatie
Volle eigendom
Ligging
Aan rustige weg
Tuin
Achtertuin en voortuin
Achtertuin
66 m² (10,6m diep en 6,25m breed)

Voorzieningen in de buurt

Boodschappen0,4 km
Grote supermarkt1,1 km
Cafetaria0,8 km
Restaurant0,4 km
Huisarts0,8 km
Ziekenhuis5,3 km
Kinderdagverblijf0,4 km
BSO0,4 km
Alle voorzieningen in Adegeest

Binnenkijken bij Haydnlaan 10 te Voorschoten

Meer meldingen in deze omgeving

112 melding
Zaterdag 8-11-2025 om 03:57
Paganinidreef, Voorschoten

112 melding
Woensdag 5-11-2025 om 19:23
Van Beethovenlaan, Voorschoten

112 melding
Maandag 3-11-2025 om 12:01
Offenbachlaan, Voorschoten

112 melding
Maandag 3-11-2025 om 12:01
Offenbachlaan, Voorschoten

112 melding
Zondag 2-11-2025 om 15:31
Chopinlaan, Voorschoten

Nieuw bedrijf
Oktober 2025
Händellaan 25, 2253BJ Voorschoten

112 melding
Woensdag 29-10-2025 om 18:38
Offenbachlaan, Voorschoten

Binnenkijken bij
Woensdag 29-10-2025
Paganinidreef 64, 2253SK Voorschoten

Direct een e-mail ontvangen bij nieuwe meldingen in deze regio?

Meld je dan GRATIS aan voor de Oozo Alert service voor Adegeest

Instellen

Meer nieuws in Adegeest

Weten hoe eenvoudig het is om af te vallen? Zonder pillen en smeersels en zonder je in het zweet te werken!
Kijk op eenvoudig-afvallen.nl

© 2012 - 2025 OOZO.nl - info@oozo.nl - Gegevens verwijderen? | Disclaimer | Privacy statement