Woning Chopinlaan 94 Voorschoten

Chopinlaan 94, 2253BZ Voorschoten

Ontvang updates voor Adegeest

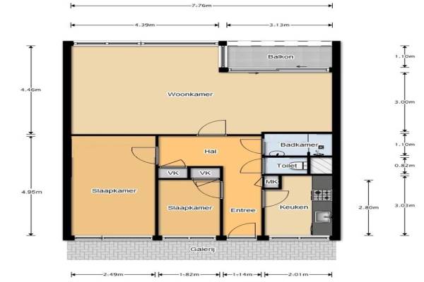
Het adres van deze woning uit 1966 is Chopinlaan 94 te Voorschoten. Het pand heeft een oppervlakte van 72m² en heeft 3 kamers kamers waarvan 2 slaapkamers. De geschatte waarde van deze woning is € 195.000.

Bekijk alle woningen in Adegeest

Gegevens van Bovenwoning (appartement)

Bouwjaar
1966
Geschatte waarde
€ 195.000
Oppervlakte
72 m2
Inhoud
220 m3
Aantal kamers
3 kamers
Slaapkamers
2
Badkamers
1 badkamer en 1 apart toilet
Soort bouw
Bestaande bouw
Eigendomssituatie
Volle eigendom

Voorzieningen in de buurt

Boodschappen0,4 km
Grote supermarkt1,1 km
Cafetaria0,8 km
Restaurant0,4 km
Huisarts0,8 km
Ziekenhuis5,3 km
Kinderdagverblijf0,4 km
BSO0,4 km
Alle voorzieningen in Adegeest

Binnenkijken bij Chopinlaan 94 te Voorschoten

Meer meldingen in deze omgeving

112 melding
Woensdag 5-11-2025 om 19:23
Van Beethovenlaan, Voorschoten

112 melding
Maandag 3-11-2025 om 12:01
Offenbachlaan, Voorschoten

112 melding
Maandag 3-11-2025 om 12:01
Offenbachlaan, Voorschoten

112 melding
Zondag 2-11-2025 om 15:31
Chopinlaan, Voorschoten

Nieuw bedrijf
Oktober 2025
Händellaan 25, 2253BJ Voorschoten

112 melding
Woensdag 29-10-2025 om 18:38
Offenbachlaan, Voorschoten

Binnenkijken bij
Woensdag 29-10-2025
Paganinidreef 64, 2253SK Voorschoten

112 melding
Zondag 26-10-2025 om 05:20
Bartóklaan, Voorschoten

Direct een e-mail ontvangen bij nieuwe meldingen in deze regio?

Meld je dan GRATIS aan voor de Oozo Alert service voor Adegeest

Instellen

Meer nieuws in Adegeest

Weten hoe eenvoudig het is om af te vallen? Zonder pillen en smeersels en zonder je in het zweet te werken!
Kijk op eenvoudig-afvallen.nl

© 2012 - 2025 OOZO.nl - info@oozo.nl - Gegevens verwijderen? | Disclaimer | Privacy statement