Woning Professor Van der Waalslaan 18 Voorschoten

Professor Van der Waalslaan 18, 2251GH Voorschoten

Ontvang updates voor Vlietwijk

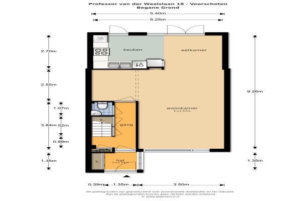
Het adres van deze woning uit 1964 is Professor Van der Waalslaan 18 te Voorschoten. Het pand heeft een oppervlakte van 107m² en een perceeloppervlakte van 174m² en heeft 5 kamers kamers waarvan 4 slaapkamers. De geschatte waarde van deze woning is € 275.000.

Bekijk alle woningen in Vlietwijk

Gegevens van Eengezinswoning, tussenwoning

Bouwjaar
1964
Geschatte waarde
€ 275.000
Oppervlakte
107 m2
Inhoud
360 m3
Aantal kamers
5 kamers
Slaapkamers
4
Soort bouw
Bestaande bouw
Ligging
Aan rustige weg
Tuin
Achtertuin en voortuin
Achtertuin
80 m² (16m diep en 5m breed)

Voorzieningen in de buurt

Boodschappen0,6 km
Grote supermarkt0,6 km
Cafetaria0,3 km
Restaurant0,2 km
Huisarts0,3 km
Ziekenhuis5,6 km
Kinderdagverblijf0,6 km
BSO0,6 km
Alle voorzieningen in Vlietwijk

Binnenkijken bij Professor Van der Waalslaan 18 te Voorschoten

Meer meldingen in deze omgeving

112 melding
Woensdag 17-12-2025 om 10:40
Lord Baden Powellweg, Voorschoten

112 melding
Dinsdag 16-12-2025 om 11:32
Prof. Einsteinlaan, Voorschoten

Nieuw bedrijf
December 2025
Tolstraat 10, 2251SJ Voorschoten

112 melding
Zondag 14-12-2025 om 03:33
Jan van Goyenplantsoen, Voorschoten

Binnenkijken bij
Zaterdag 13-12-2025
Professor Asserlaan 19, 2251CL Voorschoten

112 melding
Vrijdag 12-12-2025 om 04:55
Jan van Goyenplantsoen, Voorschoten

Binnenkijken bij
Vrijdag 12-12-2025
Vlietzicht 6, 2251VW Voorschoten

Nieuw bedrijf
December 2025
Rembrandtlaan 108, 2251HB Voorschoten

Direct een e-mail ontvangen bij nieuwe meldingen in deze regio?

Meld je dan GRATIS aan voor de Oozo Alert service voor Vlietwijk

Instellen

Meer nieuws in Vlietwijk

Weten hoe eenvoudig het is om af te vallen? Zonder pillen en smeersels en zonder je in het zweet te werken!
Kijk op eenvoudig-afvallen.nl

© 2012 - 2025 OOZO.nl - info@oozo.nl - Gegevens verwijderen? | Disclaimer | Privacy statement