Woning Oude Binnenweg 8a Twello

Oude Binnenweg 8a, 7391JA Twello

Ontvang updates voor Twello-Midden

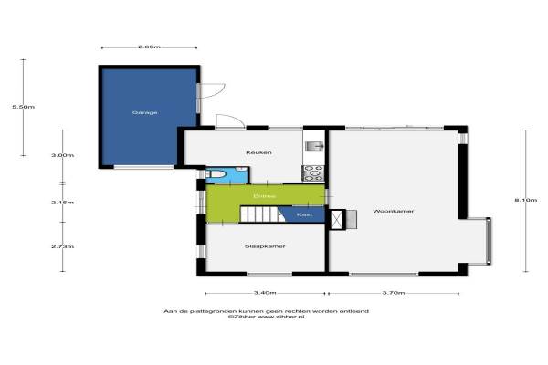
Het adres van deze woning uit 1959 is Oude Binnenweg 8a te Twello. Het pand heeft een oppervlakte van 100m² en een perceeloppervlakte van 558m² en heeft 4 kamers kamers waarvan 3 slaapkamers. De geschatte waarde van deze woning is € 389.000.

Bekijk alle woningen in Twello-Midden

Gegevens van Eengezinswoning, vrijstaande woning

Bouwjaar
1959
Geschatte waarde
€ 389.000
Oppervlakte
100 m2
Inhoud
390 m3
Aantal kamers
4 kamers
Slaapkamers
3
Badkamers
1 badkamer en 1 apart toilet
Soort bouw
Bestaande bouw
Eigendomssituatie
Volle eigendom
Ligging
Aan rustige weg en in woonwijk
Tuin
Achtertuin, voortuin en zijtuin
Achtertuin
257 m² (19m diep en 13,5m breed)

Voorzieningen in de buurt

Boodschappen0,5 km
Grote supermarkt0,6 km
Cafetaria0,5 km
Restaurant0,5 km
Huisarts0,7 km
Ziekenhuis7,9 km
Kinderdagverblijf0,5 km
BSO0,6 km
Alle voorzieningen in Twello-Midden

Binnenkijken bij Oude Binnenweg 8a te Twello

Meer meldingen in deze omgeving

Binnenkijken bij
Zondag 16-11-2025
van Goghstraat 34, 7391NW Twello

Nieuw bedrijf
November 2025
Adriaen van Ostadestraat 6, 7391BJ Twello

Binnenkijken bij
Woensdag 29-10-2025
Parkflat de Statenhoed 15, 7391GV Twello

Nieuw bedrijf
Oktober 2025
Deken Rekveltstraat 7, 7391ZE Twello

112 melding
Zaterdag 25-10-2025 om 04:29
Raccordement, Twello

Binnenkijken bij
Zondag 19-10-2025
Marktplein 90, 7391DZ Twello

Faillissement
Vrijdag 17-10-2025
Schoolstraat 8, 7391DA TWELLO

Nieuw bedrijf
Oktober 2025
Marktplein 32, 7391DZ Twello

Direct een e-mail ontvangen bij nieuwe meldingen in deze regio?

Meld je dan GRATIS aan voor de Oozo Alert service voor Twello-Midden

Instellen

Meer nieuws in Twello-Midden

Weten hoe eenvoudig het is om af te vallen? Zonder pillen en smeersels en zonder je in het zweet te werken!
Kijk op eenvoudig-afvallen.nl

© 2012 - 2025 OOZO.nl - info@oozo.nl - Gegevens verwijderen? | Disclaimer | Privacy statement