Woning Rijksstraatweg 91 Twello

Rijksstraatweg 91, 7391MJ Twello

Ontvang updates voor Twello-Noord

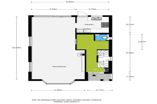
Het adres van deze woning uit 1928 is Rijksstraatweg 91 te Twello. Het pand heeft 6 kamers kamers waarvan 5 slaapkamers. De geschatte waarde van deze woning is € 549.000.

Bekijk alle woningen in Twello-Noord

Gegevens van Eengezinswoning, vrijstaande woning

Bouwjaar
1928
Geschatte waarde
€ 549.000
Oppervlakte
0 m2
Inhoud
548 m3
Aantal kamers
6 kamers
Slaapkamers
5
Badkamers
1 badkamer en 1 apart toilet
Soort bouw
Bestaande bouw
Eigendomssituatie
Volle eigendom
Ligging
In woonwijk
Tuin
Achtertuin, voortuin, zijtuin en tuin rondom
Achtertuin
406 m² (28m diep en 14,5m breed)

Voorzieningen in de buurt

Boodschappen0,7 km
Grote supermarkt0,7 km
Cafetaria0,7 km
Restaurant0,7 km
Huisarts1,0 km
Ziekenhuis7,6 km
Kinderdagverblijf0,8 km
BSO0,8 km
Alle voorzieningen in Twello-Noord

Binnenkijken bij Rijksstraatweg 91 te Twello

Meer meldingen in deze omgeving

112 melding
Zaterdag 29-11-2025 om 22:29
Stationsdwarsstraat, Twello

Nieuw bedrijf
November 2025
Rijksstraatweg 32, 7391MR Twello

Binnenkijken bij
Vrijdag 21-11-2025
Stationsstraat 69, 7391EJ Twello

Binnenkijken bij
Vrijdag 21-11-2025
Kruisakkerweg 9, 7391GA Twello

Binnenkijken bij
Dinsdag 18-11-2025
Rijksstraatweg 102, 7391MV Twello

Binnenkijken bij
Dinsdag 18-11-2025
Rijksstraatweg 104, 7391MV Twello

Binnenkijken bij
Vrijdag 14-11-2025
Lindelaan 26, 7391JZ Twello

Nieuw bedrijf
November 2025
Rijksstraatweg 75A, 7391MJ Twello

Direct een e-mail ontvangen bij nieuwe meldingen in deze regio?

Meld je dan GRATIS aan voor de Oozo Alert service voor Twello-Noord

Instellen

Meer nieuws in Twello-Noord

Weten hoe eenvoudig het is om af te vallen? Zonder pillen en smeersels en zonder je in het zweet te werken!
Kijk op eenvoudig-afvallen.nl

© 2012 - 2025 OOZO.nl - info@oozo.nl - Gegevens verwijderen? | Disclaimer | Privacy statement