Woning Jan van Ruusbroeckstraat 37 Vught

Jan van Ruusbroeckstraat 37, 5262TC Vught

Ontvang updates voor Molenstraat en omgeving

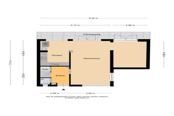
Het adres van deze woning uit 1963 is Jan van Ruusbroeckstraat 37 te Vught. Het pand heeft een oppervlakte van 97m² en een perceeloppervlakte van 233m² en heeft 4 kamers kamers waarvan 2 slaapkamers. De geschatte waarde van deze woning is € 375.000.

Bekijk alle woningen in Molenstraat en omgeving

Gegevens van Hoekwoning

Bouwjaar
1963
Geschatte waarde
€ 375.000
Oppervlakte
97 m2
Inhoud
377 m3
Aantal kamers
4 kamers
Slaapkamers
2
Badkamers
2 aparte toiletten
Soort bouw
Bestaande bouw
Eigendomssituatie
Volle eigendom
Ligging
Aan rustige weg en in woonwijk
Tuin
Tuin
Achtertuin
100 m² (10m diep en 10m breed)

Voorzieningen in de buurt

Boodschappen0,4 km
Grote supermarkt0,4 km
Cafetaria0,4 km
Restaurant0,4 km
Huisarts0,5 km
Ziekenhuis5,6 km
Kinderdagverblijf0,4 km
BSO0,3 km
Alle voorzieningen in Molenstraat en omgeving

Binnenkijken bij Jan van Ruusbroeckstraat 37 te Vught

Meer meldingen in deze omgeving

Faillissement
Dinsdag 20-1-2026
Industrieweg 5B, 5262GJ Vught

Binnenkijken bij
Donderdag 15-1-2026
Jan van Ruusbroeckstraat 46, 5262TD Vught

Binnenkijken bij
Donderdag 15-1-2026
Esscheweg 67, 5262TV Vught

Binnenkijken bij
Vrijdag 9-1-2026
Molenstraat 31, 5262EA Vught

Binnenkijken bij
Woensdag 7-1-2026
Moleneindplein 26, 5262CX Vught

Binnenkijken bij
Zaterdag 3-1-2026
Jan van Amstelstraat 53, 5262CP Vught

Nieuw bedrijf
Januari 2026
Jan van Amstelstraat 47, 5262CP Vught

Nieuw bedrijf
Januari 2026
Hadewychstraat 39, 5262TA Vught

Direct een e-mail ontvangen bij nieuwe meldingen in deze regio?

Meld je dan GRATIS aan voor de Oozo Alert service voor Molenstraat en omgeving

Instellen

Meer nieuws in Molenstraat en omgeving

Weten hoe eenvoudig het is om af te vallen? Zonder pillen en smeersels en zonder je in het zweet te werken!
Kijk op eenvoudig-afvallen.nl

© 2012 - 2026 OOZO.nl - info@oozo.nl - Gegevens verwijderen? | Disclaimer | Privacy statement