Woning Baarzenstraat 49 Vught

Baarzenstraat 49, 5262GD Vught

Ontvang updates voor Molenstraat en omgeving

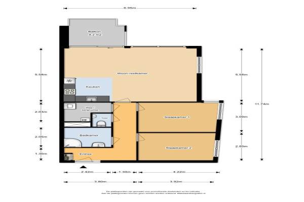
Het adres van deze woning uit 2012 is Baarzenstraat 49 te Vught. Het pand heeft een oppervlakte van 87m² en heeft 3 kamers kamers waarvan 2 slaapkamers. De geschatte waarde van deze woning is € 285.000.

Bekijk alle woningen in Molenstraat en omgeving

Gegevens van Galerijflat (appartement)

Bouwjaar
2012
Geschatte waarde
€ 285.000
Oppervlakte
87 m2
Inhoud
285 m3
Aantal kamers
3 kamers
Slaapkamers
2
Badkamers
1 badkamer en 1 apart toilet
Soort bouw
Bestaande bouw
Eigendomssituatie
Volle eigendom

Voorzieningen in de buurt

Boodschappen0,4 km
Grote supermarkt0,4 km
Cafetaria0,4 km
Restaurant0,4 km
Huisarts0,5 km
Ziekenhuis5,6 km
Kinderdagverblijf0,4 km
BSO0,3 km
Alle voorzieningen in Molenstraat en omgeving

Binnenkijken bij Baarzenstraat 49 te Vught

Meer meldingen in deze omgeving

Binnenkijken bij
Zaterdag 29-11-2025
Adriaan Poortersstraat 17, 5262TH Vught

Nieuw bedrijf
November 2025
Michiel de Ruyterweg 52, 5262VG Vught

Nieuw bedrijf
November 2025
Ouwerkerklaan 11, 5262VN Vught

Faillissement
Woensdag 26-11-2025
Baarzenstraat 21, 5262GD Vught

Binnenkijken bij
Dinsdag 25-11-2025
Esscheweg 67, 5262TV Vught

Nieuw bedrijf
November 2025
Molenstraat 203, 5262EC Vught

Binnenkijken bij
Dinsdag 11-11-2025
Moleneindplein 306, 5262CM Vught

Binnenkijken bij
Dinsdag 11-11-2025
Jan van Ruusbroeckstraat 45, 5262TC Vught

Direct een e-mail ontvangen bij nieuwe meldingen in deze regio?

Meld je dan GRATIS aan voor de Oozo Alert service voor Molenstraat en omgeving

Instellen

Meer nieuws in Molenstraat en omgeving

Weten hoe eenvoudig het is om af te vallen? Zonder pillen en smeersels en zonder je in het zweet te werken!
Kijk op eenvoudig-afvallen.nl

© 2012 - 2025 OOZO.nl - info@oozo.nl - Gegevens verwijderen? | Disclaimer | Privacy statement