Woning Mesdaglaan 27 Sprang-Capelle

Mesdaglaan 27, 5161VB Sprang-Capelle

Ontvang updates voor Sprang

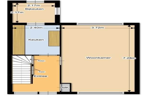
Het adres van deze woning uit 1972 is Mesdaglaan 27 te Sprang-Capelle. Het pand heeft een oppervlakte van 113m² en een perceeloppervlakte van 152m² en heeft 5 kamers kamers waarvan 4 slaapkamers. De geschatte waarde van deze woning is € 210.000.

Bekijk alle woningen in Sprang

Gegevens van Eengezinswoning, tussenwoning

Bouwjaar
1972
Geschatte waarde
€ 210.000
Oppervlakte
113 m2
Inhoud
350 m3
Aantal kamers
5 kamers
Slaapkamers
4
Soort bouw
Bestaande bouw
Ligging
Aan rustige weg en in woonwijk
Tuin
Achtertuin
Achtertuin
49 m² (7,6m diep en 6,42m breed)

Voorzieningen in de buurt

Boodschappen0,9 km
Grote supermarkt1,0 km
Cafetaria1,9 km
Restaurant0,4 km
Huisarts1,2 km
Ziekenhuis3,4 km
Kinderdagverblijf0,5 km
BSO0,5 km
Alle voorzieningen in Sprang

Binnenkijken bij Mesdaglaan 27 te Sprang-Capelle

Meer meldingen in deze omgeving

112 melding
Vrijdag 13-2-2026 om 08:21
Van der Duinstraat, 5161BR Sprang-Capelle

112 melding
Vrijdag 13-2-2026 om 08:21
Van der Duinstraat, 5161BR Sprang-Capelle

112 melding
Woensdag 11-2-2026 om 20:20
Achter de Hoven, 5161BT Sprang-Capelle

112 melding
Woensdag 11-2-2026 om 20:20
Achter de Hoven, 5161BT Sprang-Capelle

Onroerend goed
Woensdag 11-2-2026
Dick Flemmingstraat 2-a, 5161CB Sprang-Capelle

112 melding
Vrijdag 30-1-2026 om 17:01
Oudestraat, 5161TB Sprang-Capelle

112 melding
Donderdag 29-1-2026 om 19:15
Oudestraat, 5161TB Sprang-Capelle

112 melding
Donderdag 29-1-2026 om 19:15
Oudestraat, 5161TB Sprang-Capelle

Direct een e-mail ontvangen bij nieuwe meldingen in deze regio?

Meld je dan GRATIS aan voor de Oozo Alert service voor Sprang

Instellen

Meer nieuws in Sprang

Weten hoe eenvoudig het is om af te vallen? Zonder pillen en smeersels en zonder je in het zweet te werken!
Kijk op eenvoudig-afvallen.nl

© 2012 - 2026 OOZO.nl - info@oozo.nl - Gegevens verwijderen? | Disclaimer | Privacy statement