Woning Leeuwerik 11 Waspik

Leeuwerik 11, 5165KW Waspik

Ontvang updates voor Waspik Beneden

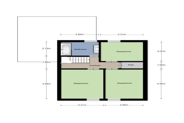
Het adres van deze woning uit 1987 is Leeuwerik 11 te Waspik. Het pand heeft een oppervlakte van 121m² en een perceeloppervlakte van 378m² en heeft 4 kamers kamers waarvan 3 slaapkamers. De geschatte waarde van deze woning is € 345.000.

Bekijk alle woningen in Waspik Beneden

Gegevens van Eengezinswoning, vrijstaande woning

Bouwjaar
1987
Geschatte waarde
€ 345.000
Oppervlakte
121 m2
Inhoud
527 m3
Aantal kamers
4 kamers
Slaapkamers
3
Badkamers
1 badkamer en 1 apart toilet
Soort bouw
Bestaande bouw
Eigendomssituatie
Volle eigendom
Ligging
Aan rustige weg en in woonwijk
Tuin
Achtertuin, voortuin en zijtuin
Achtertuin
175 m² (14m diep en 12,5m breed)

Voorzieningen in de buurt

Boodschappen0,5 km
Grote supermarkt0,5 km
Cafetaria0,6 km
Restaurant0,5 km
Huisarts0,8 km
Ziekenhuis8,1 km
Kinderdagverblijf0,6 km
BSO0,5 km
Alle voorzieningen in Waspik Beneden

Binnenkijken bij Leeuwerik 11 te Waspik

Meer meldingen in deze omgeving

112 melding
Vrijdag 14-11-2025 om 08:23
Stadhoudersdijk, 5165RG Waspik

Nieuw bedrijf
November 2025
Benedenkerkstraat 97, 5165CB Waspik

Nieuw bedrijf
November 2025
Raadhuisstraat 19, 5165CH Waspik

Faillissement
Donderdag 13-11-2025
Burgemeester Libourelstraat 8, 5165TN Waspik

Faillissement
Donderdag 13-11-2025
Burg Libourelstraat 8, 5165TN WASPIK

112 melding
Woensdag 12-11-2025 om 19:00
Stationslaan, 5165 Waspik

112 melding
Woensdag 12-11-2025 om 19:00
Stationslaan, 5165 Waspik

112 melding
Woensdag 12-11-2025 om 18:19
Diepenbrockstraat, 5165VC Waspik

Direct een e-mail ontvangen bij nieuwe meldingen in deze regio?

Meld je dan GRATIS aan voor de Oozo Alert service voor Waspik Beneden

Instellen

Meer nieuws in Waspik Beneden

Weten hoe eenvoudig het is om af te vallen? Zonder pillen en smeersels en zonder je in het zweet te werken!
Kijk op eenvoudig-afvallen.nl

© 2012 - 2025 OOZO.nl - info@oozo.nl - Gegevens verwijderen? | Disclaimer | Privacy statement