Woning Jacob Catslaan 1 Waddinxveen

Jacob Catslaan 1, 2741XL Waddinxveen

Ontvang updates voor Vondelwijk

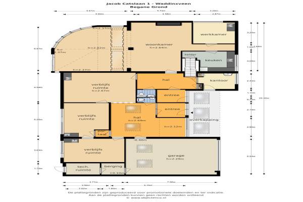
Het adres van deze woning uit 1974 is Jacob Catslaan 1 te Waddinxveen. Het pand heeft een oppervlakte van 307m² en een perceeloppervlakte van 776m² en heeft 9 kamers kamers waarvan 7 slaapkamers. De geschatte waarde van deze woning is € 475.000.

Bekijk alle woningen in Vondelwijk

Gegevens van Eengezinswoning, vrijstaande woning

Bouwjaar
1974
Geschatte waarde
€ 475.000
Oppervlakte
307 m2
Inhoud
1208 m3
Aantal kamers
9 kamers
Slaapkamers
7
Badkamers
3 badkamers en 2 aparte toiletten
Soort bouw
Bestaande bouw
Eigendomssituatie
Volle eigendom
Ligging
Aan rustige weg en in woonwijk
Tuin
Achtertuin, voortuin en zijtuin
Achtertuin
280 m² (10m diep en 28m breed)

Voorzieningen in de buurt

Boodschappen0,4 km
Grote supermarkt0,4 km
Cafetaria0,6 km
Restaurant0,6 km
Huisarts1,0 km
Ziekenhuis7,0 km
Kinderdagverblijf0,4 km
BSO0,4 km
Alle voorzieningen in Vondelwijk

Binnenkijken bij Jacob Catslaan 1 te Waddinxveen

Meer meldingen in deze omgeving

112 melding
Maandag 9-3-2026 om 04:52
Justus van Effenlaan, Waddinxveen

Nieuw bedrijf
Maart 2026
Brederolaan 31, 2741BH Waddinxveen

112 melding
Zondag 8-3-2026 om 17:48
Bosboom Toussaintsingel, 2741AL Waddinxveen

112 melding
Zondag 8-3-2026 om 17:48
Bosboom Toussaintsingel, 2741AL Waddinxveen

112 melding
Zaterdag 7-3-2026 om 01:27
Jan Campertlaan, 2741AB Waddinxveen

Binnenkijken bij
Zaterdag 7-3-2026
H. Heijermanslaan 10, 2741ZJ Waddinxveen

112 melding
Vrijdag 6-3-2026 om 19:27
Jacob van Lennepstraat, Waddinxveen

112 melding
Vrijdag 6-3-2026 om 19:27
Jacob van Lennepstraat, Waddinxveen

Direct een e-mail ontvangen bij nieuwe meldingen in deze regio?

Meld je dan GRATIS aan voor de Oozo Alert service voor Vondelwijk

Instellen

Meer nieuws in Vondelwijk

Weten hoe eenvoudig het is om af te vallen? Zonder pillen en smeersels en zonder je in het zweet te werken!
Kijk op eenvoudig-afvallen.nl

© 2012 - 2026 OOZO.nl - info@oozo.nl - Gegevens verwijderen? | Disclaimer | Privacy statement