Woning CPO SAWA Costerweg -7 App 5 Wageningen

CPO SAWA Costerweg -7 App 5, 6702DL Wageningen

Ontvang updates voor Buitenwijk Wageningen-West

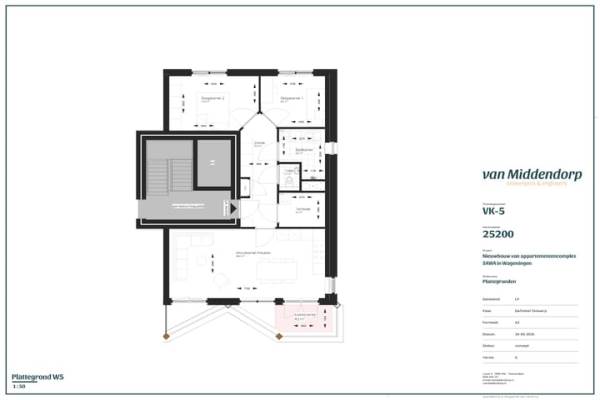
Het adres van deze woning uit 2027 is CPO SAWA Costerweg -7 App 5 te Wageningen. Het pand heeft een oppervlakte van 71m² en heeft 3 kamers kamers waarvan 2 slaapkamers. De geschatte waarde van deze woning is € 394.000.

Bekijk alle woningen in Buitenwijk Wageningen-West

Gegevens van Portiekflat (appartement)

Bouwjaar
2027
Geschatte waarde
€ 394.000
Oppervlakte
71 m2
Inhoud
291 m3
Aantal kamers
3 kamers
Slaapkamers
2
Badkamers
1 badkamer en 1 apart toilet
Soort bouw
Nieuwbouw
Ligging
Aan park, beschutte ligging, in centrum, in woonwijk en vrij uitzicht
Tuin
Tuin rondom

Voorzieningen in de buurt

Binnenkijken bij CPO SAWA Costerweg -7 App 5 te Wageningen

Meer meldingen in deze omgeving

Nieuw bedrijf
April 2026
Marijkeweg 20105, 6709PG Wageningen

112 melding
Woensdag 22-4-2026 om 10:20
Costerweg, Wageningen

112 melding
Maandag 20-4-2026 om 15:01
Thorbeckestraat, Wageningen

Nieuw bedrijf
April 2026
Treubstraat 17, 6702BA Wageningen

Nieuw bedrijf
April 2026
De Savornin Lohmanstraat 24, 6702BP Wageningen

Binnenkijken bij
Maandag 13-4-2026
CPO SAWA Costerweg 5-7 App 9, 6702DL Wageningen

Binnenkijken bij
Vrijdag 10-4-2026
Nolensstraat 20, 6702CS Wageningen

Nieuw bedrijf
April 2026
Treubstraat 45, 6702BB Wageningen

Direct een e-mail ontvangen bij nieuwe meldingen in deze regio?

Meld je dan GRATIS aan voor de Oozo Alert service voor Buitenwijk Wageningen-West

Instellen

Meer nieuws in Buitenwijk Wageningen-West

Weten hoe eenvoudig het is om af te vallen? Zonder pillen en smeersels en zonder je in het zweet te werken!
Kijk op eenvoudig-afvallen.nl

© 2012 - 2026 OOZO.nl - info@oozo.nl - Gegevens verwijderen? | Disclaimer | Privacy statement