Woning Middelweg 7 Wassenaar

Middelweg 7, 2242 B Wassenaar

Ontvang updates voor De Deijl

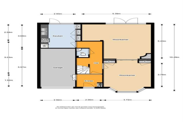
Het adres van deze woning uit 1934 is Middelweg 7 te Wassenaar. Het pand heeft een oppervlakte van 231m² en een perceeloppervlakte van 281m² en heeft 7 kamers kamers waarvan 5 slaapkamers. De geschatte waarde van deze woning is € 895.000.

Bekijk alle woningen in De Deijl

Gegevens van Herenhuis, tussenwoning

Bouwjaar
1934
Geschatte waarde
€ 895.000
Oppervlakte
231 m2
Inhoud
805 m3
Aantal kamers
7 kamers
Slaapkamers
5
Badkamers
2 badkamers en 2 aparte toiletten
Soort bouw
Bestaande bouw
Eigendomssituatie
Volle eigendom
Ligging
Aan rustige weg, in centrum en in woonwijk
Tuin
Achtertuin en voortuin
Achtertuin
138 m² (14,5m diep en 9,5m breed)

Voorzieningen in de buurt

Boodschappen0,5 km
Grote supermarkt0,5 km
Cafetaria0,4 km
Restaurant0,3 km
Huisarts0,5 km
Ziekenhuis0,8 km
Kinderdagverblijf0,3 km
BSO0,5 km
Alle voorzieningen in De Deijl

Binnenkijken bij Middelweg 7 te Wassenaar

Meer meldingen in deze omgeving

112 melding
Woensdag 18-3-2026 om 21:40
Cornelis de Wittstraat, Wassenaar

Faillissement
Maandag 16-3-2026
V Zuylen van Nijeveltstr 122, 2242AT WASSENAAR

Faillissement
Maandag 16-3-2026
Van Zuylen van Nijeveltstraat 122, 2242AT Wassenaar

Binnenkijken bij
Zaterdag 14-3-2026
Zijllaan 19, 2242CA Wassenaar

Binnenkijken bij
Zaterdag 14-3-2026
Lange Kerkdam 89, 2242BT Wassenaar

Onroerend goed
Vrijdag 13-3-2026
Johan de Wittstraat 88, 2242LC Wassenaar

Binnenkijken bij
Vrijdag 13-3-2026
Van Zuylen van Nijeveltstraat 16, 2242AN Wassenaar

Binnenkijken bij
Donderdag 12-3-2026
Van Zuylen van Nijeveltstraat 196, 2242AX Wassenaar

Direct een e-mail ontvangen bij nieuwe meldingen in deze regio?

Meld je dan GRATIS aan voor de Oozo Alert service voor De Deijl

Instellen

Meer nieuws in De Deijl

Weten hoe eenvoudig het is om af te vallen? Zonder pillen en smeersels en zonder je in het zweet te werken!
Kijk op eenvoudig-afvallen.nl

© 2012 - 2026 OOZO.nl - info@oozo.nl - Gegevens verwijderen? | Disclaimer | Privacy statement