Woning Havenbuurt 33 Marken

Havenbuurt 33, 1156AM Marken

Ontvang updates voor Havenbuurt en Kerkbuurt

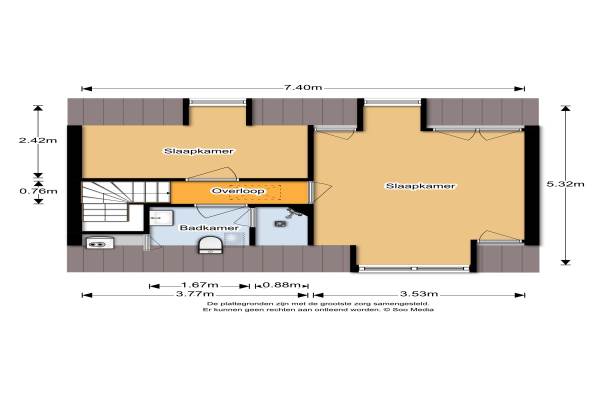
Het adres van deze woning uit 1985 is Havenbuurt 33 te Marken. Het pand heeft een oppervlakte van 86m² en een perceeloppervlakte van 43m² en heeft 4 kamers kamers waarvan 3 slaapkamers. De geschatte waarde van deze woning is € 275.000.

Bekijk alle woningen in Havenbuurt en Kerkbuurt

Gegevens van Eengezinswoning, vrijstaande woning

Bouwjaar
1985
Geschatte waarde
€ 275.000
Oppervlakte
86 m2
Inhoud
360 m3
Aantal kamers
4 kamers
Slaapkamers
3
Badkamers
1 badkamer en 1 apart toilet
Soort bouw
Bestaande bouw
Eigendomssituatie
Eigendom belast met erfpacht (einddatum erfpacht: 31-03-2046)
Ligging
In centrum en vrij uitzicht

Voorzieningen in de buurt

Boodschappen0,6 km
Grote supermarkt0,9 km
Cafetaria0,5 km
Restaurant0,6 km
Huisarts0,5 km
Ziekenhuis14,5 km
Kinderdagverblijf0,5 km
BSO0,5 km
Alle voorzieningen in Havenbuurt en Kerkbuurt

Binnenkijken bij Havenbuurt 33 te Marken

Meer meldingen in deze omgeving

112 melding
Woensdag 31-12-2025 om 08:25
Markerwaardstraat, 1156CM Marken

112 melding
Dinsdag 30-12-2025 om 09:25
Noorderwerfstraat, 1156AJ Marken

112 melding
Dinsdag 30-12-2025 om 09:23
Noorderwerfstraat, 1156AJ Marken

112 melding
Dinsdag 30-12-2025 om 09:15
Havenbuurt, 1156AM Marken

112 melding
Dinsdag 30-12-2025 om 09:02
Havenbuurt, 1156AL Marken

112 melding
Dinsdag 30-12-2025 om 09:01
Havenbuurt, 1156AL Marken

112 melding
Dinsdag 30-12-2025 om 09:01
Havenbuurt, 1156AL Marken

112 melding
Dinsdag 30-12-2025 om 09:00
Havenbuurt, 1156AL Marken

Direct een e-mail ontvangen bij nieuwe meldingen in deze regio?

Meld je dan GRATIS aan voor de Oozo Alert service voor Havenbuurt en Kerkbuurt

Instellen

Meer nieuws in Havenbuurt en Kerkbuurt

Weten hoe eenvoudig het is om af te vallen? Zonder pillen en smeersels en zonder je in het zweet te werken!
Kijk op eenvoudig-afvallen.nl

© 2012 - 2026 OOZO.nl - info@oozo.nl - Gegevens verwijderen? | Disclaimer | Privacy statement