Woning Boshoverweg 74 Weert

Boshoverweg 74, 6002AP Weert

Ontvang updates voor Boshoven-Vrakker

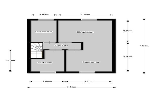
Het adres van deze woning uit 1947 is Boshoverweg 74 te Weert. Het pand heeft een oppervlakte van 138m² en een perceeloppervlakte van 345m² en heeft 5 kamers kamers waarvan 4 slaapkamers. De geschatte waarde van deze woning is € 309.500.

Bekijk alle woningen in Boshoven-Vrakker

Gegevens van Eengezinswoning, halfvrijstaande woning

Bouwjaar
1947
Geschatte waarde
€ 309.500
Oppervlakte
138 m2
Inhoud
560 m3
Aantal kamers
5 kamers
Slaapkamers
4
Badkamers
2 badkamers en 1 apart toilet
Soort bouw
Bestaande bouw
Eigendomssituatie
Volle eigendom
Ligging
In woonwijk
Tuin
Achtertuin en voortuin
Achtertuin
78 m² (6,75m diep en 11,5m breed)

Voorzieningen in de buurt

Boodschappen0,5 km
Grote supermarkt0,6 km
Cafetaria0,5 km
Restaurant1,4 km
Huisarts0,6 km
Ziekenhuis2,9 km
Kinderdagverblijf0,7 km
BSO0,5 km
Alle voorzieningen in Boshoven-Vrakker

Binnenkijken bij Boshoverweg 74 te Weert

Meer meldingen in deze omgeving

Binnenkijken bij
Vrijdag 12-12-2025
Hogenakkerstraat 30, 6002BB Weert

Nieuw bedrijf
December 2025
Fresiastraat 8, 6002TX Weert

Nieuw bedrijf
December 2025
Pastoor Rieterstraat 61, 6002CB Weert

Nieuw bedrijf
December 2025
Dotterbloemstraat 4, 6002CK Weert

112 melding
Vrijdag 5-12-2025 om 09:53
Boshoverweg, Weert

112 melding
Donderdag 4-12-2025 om 16:15
Veldbloemstraat, Weert

Binnenkijken bij
Dinsdag 2-12-2025
Abshove 8, 6002VA Weert

Binnenkijken bij
Dinsdag 2-12-2025
Odahoevestraat 40, 6002CT Weert

Direct een e-mail ontvangen bij nieuwe meldingen in deze regio?

Meld je dan GRATIS aan voor de Oozo Alert service voor Boshoven-Vrakker

Instellen

Meer nieuws in Boshoven-Vrakker

Weten hoe eenvoudig het is om af te vallen? Zonder pillen en smeersels en zonder je in het zweet te werken!
Kijk op eenvoudig-afvallen.nl

© 2012 - 2025 OOZO.nl - info@oozo.nl - Gegevens verwijderen? | Disclaimer | Privacy statement