Woning Thornstraat 21 Weert

Thornstraat 21, 6004JP Weert

Ontvang updates voor Groenewoud-Zuid

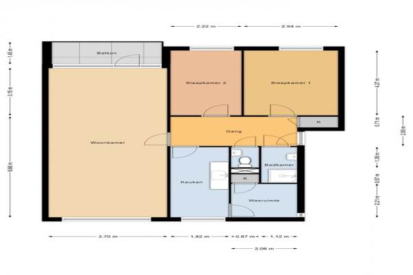
Het adres van deze woning uit 1967 is Thornstraat 21 te Weert. Het pand heeft een oppervlakte van 88m² en een perceeloppervlakte van 88m² en heeft 3 kamers kamers waarvan 2 slaapkamers. De geschatte waarde van deze woning is € 205.000.

Bekijk alle woningen in Groenewoud-Zuid

Gegevens van Appartement

Bouwjaar
1967
Geschatte waarde
€ 205.000
Oppervlakte
88 m2
Inhoud
220 m3
Aantal kamers
3 kamers
Slaapkamers
2
Badkamers
1 badkamer
Soort bouw
Bestaande bouw
Eigendomssituatie
Volle eigendom
Tuin
Balkon aanwezig

Voorzieningen in de buurt

Boodschappen0,3 km
Grote supermarkt0,5 km
Cafetaria0,4 km
Restaurant0,7 km
Huisarts0,3 km
Ziekenhuis0,7 km
Kinderdagverblijf0,5 km
BSO0,6 km
Alle voorzieningen in Groenewoud-Zuid

Binnenkijken bij Thornstraat 21 te Weert

Meer meldingen in deze omgeving

112 melding
Donderdag 9-10-2025 om 11:50
Roermondseweg, 6004AN Weert

Binnenkijken bij
Donderdag 9-10-2025
Schuttebeemd 48, 6004GT Weert

Binnenkijken bij
Donderdag 9-10-2025
Oppergelrestraat 27, 6004HG Weert

Binnenkijken bij
Donderdag 9-10-2025
Gulikstraat 23, 6004GJ Weert

112 melding
Donderdag 9-10-2025 om 08:32
Maaslandlaan, Weert

112 melding
Zaterdag 4-10-2025 om 17:04
Doctor Kuyperstraat, Weert

112 melding
Zaterdag 4-10-2025 om 17:03
Doctor Kuyperstraat, Weert

112 melding
Zaterdag 4-10-2025 om 09:57
Oppergelrestraat, Weert

Direct een e-mail ontvangen bij nieuwe meldingen in deze regio?

Meld je dan GRATIS aan voor de Oozo Alert service voor Groenewoud-Zuid

Instellen

Meer nieuws in Groenewoud-Zuid

Weten hoe eenvoudig het is om af te vallen? Zonder pillen en smeersels en zonder je in het zweet te werken!
Kijk op eenvoudig-afvallen.nl

© 2012 - 2025 OOZO.nl - info@oozo.nl - Gegevens verwijderen? | Disclaimer | Privacy statement