Woning Sint Paulusstraat 21 Weert

Sint Paulusstraat 21, 6001CM Weert

Ontvang updates voor Maaspoort

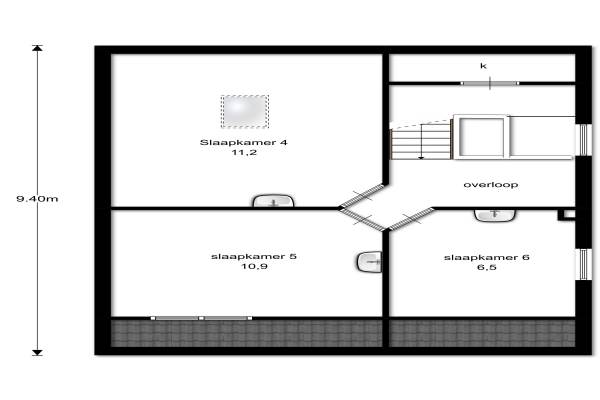
Het adres van deze woning uit 1938 is Sint Paulusstraat 21 te Weert. Het pand heeft een oppervlakte van 183m² en een perceeloppervlakte van 245m² en heeft 7 kamers kamers waarvan 6 slaapkamers. De geschatte waarde van deze woning is € 300.000.

Bekijk alle woningen in Maaspoort

Gegevens van Eengezinswoning, 2-onder-1-kapwoning

Bouwjaar
1938
Geschatte waarde
€ 300.000
Oppervlakte
183 m2
Inhoud
772 m3
Aantal kamers
7 kamers
Slaapkamers
6
Badkamers
1 apart toilet
Soort bouw
Bestaande bouw
Tuin
Achtertuin en voortuin

Voorzieningen in de buurt

Boodschappen0,2 km
Grote supermarkt0,3 km
Cafetaria0,2 km
Restaurant0,3 km
Huisarts0,3 km
Ziekenhuis0,4 km
Kinderdagverblijf0,4 km
BSO0,7 km
Alle voorzieningen in Maaspoort

Binnenkijken bij Sint Paulusstraat 21 te Weert

Meer meldingen in deze omgeving

112 melding
Donderdag 20-11-2025 om 22:42
Vogelsbleek, Weert

Nieuw bedrijf
November 2025
Sint Jorisstraat 30, 6001BT Weert

Onroerend goed
Dinsdag 11-11-2025
Maaspoort 10, 6001BP Weert

Binnenkijken bij
Dinsdag 11-11-2025
Graafschap Hornelaan 55, 6001AA Weert

112 melding
Maandag 10-11-2025 om 15:42
Vogelsbleek, Weert

112 melding
Maandag 10-11-2025 om 15:41
Vogelsbleek, Weert

112 melding
Maandag 10-11-2025 om 15:41
Vogelsbleek, Weert

112 melding
Zondag 9-11-2025 om 14:33
Vogelsbleek, Weert

Direct een e-mail ontvangen bij nieuwe meldingen in deze regio?

Meld je dan GRATIS aan voor de Oozo Alert service voor Maaspoort

Instellen

Meer nieuws in Maaspoort

Weten hoe eenvoudig het is om af te vallen? Zonder pillen en smeersels en zonder je in het zweet te werken!
Kijk op eenvoudig-afvallen.nl

© 2012 - 2025 OOZO.nl - info@oozo.nl - Gegevens verwijderen? | Disclaimer | Privacy statement