Woning Achtergracht 126 Weesp

Achtergracht 126, 1381BS Weesp

Ontvang updates voor Centrum

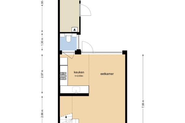
Het adres van deze woning uit 1931 is Achtergracht 126 te Weesp. Het pand heeft een oppervlakte van 70m² en een perceeloppervlakte van 113m² en heeft 3 kamers kamers waarvan 2 slaapkamers. De geschatte waarde van deze woning is € 375.000.

Bekijk alle woningen in Centrum

Gegevens van Eengezinswoning, tussenwoning

Bouwjaar
1931
Geschatte waarde
€ 375.000
Oppervlakte
70 m2
Inhoud
316 m3
Aantal kamers
3 kamers
Slaapkamers
2
Badkamers
2 badkamers
Soort bouw
Bestaande bouw
Ligging
Aan park, aan rustige weg, in bosrijke omgeving en in centrum
Tuin
Achtertuin
Achtertuin
22 m² (5,8 meter diep en 3,75 meter breed)

Voorzieningen in de buurt

Boodschappen0,2 km
Grote supermarkt0,3 km
Cafetaria0,2 km
Restaurant0,1 km
Huisarts0,5 km
Ziekenhuis1,0 km
Kinderdagverblijf0,4 km
BSO0,3 km
Alle voorzieningen in Centrum

Binnenkijken bij Achtergracht 126 te Weesp

Meer meldingen in deze omgeving

Onroerend goed
Zaterdag 17-1-2026
Ossenmarkt 12, 1381LX Weesp

Binnenkijken bij
Dinsdag 13-1-2026
Nieuwstraat 98, 1381XV Weesp

112 melding
Vrijdag 9-1-2026 om 12:18
Binnenveer, 1381BT Weesp

Onroerend goed
Vrijdag 9-1-2026
Slijkstraat 47, 1381AZ Weesp

112 melding
Donderdag 8-1-2026 om 18:23
Klaas Listinghsteeg, 1381BW Weesp

112 melding
Donderdag 8-1-2026 om 18:22
Klaas Listinghsteeg, 1381BW Weesp

112 melding
Vrijdag 2-1-2026 om 19:03
Roskamstraat, Weesp

Nieuw bedrijf
Januari 2026
Nieuwstad 90, 1381CD Weesp

Direct een e-mail ontvangen bij nieuwe meldingen in deze regio?

Meld je dan GRATIS aan voor de Oozo Alert service voor Centrum

Instellen

Meer nieuws in Centrum

Weten hoe eenvoudig het is om af te vallen? Zonder pillen en smeersels en zonder je in het zweet te werken!
Kijk op eenvoudig-afvallen.nl

© 2012 - 2026 OOZO.nl - info@oozo.nl - Gegevens verwijderen? | Disclaimer | Privacy statement