Woning Appelstraat 35 Beneden-Leeuwen

Appelstraat 35, 6658ES Beneden-Leeuwen

Ontvang updates voor Kern Beneden-Leeuwen

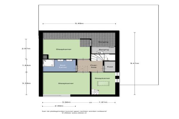
Het adres van deze woning uit 1977 is Appelstraat 35 te Beneden-Leeuwen. Het pand heeft een oppervlakte van 95m² en een perceeloppervlakte van 217m² en heeft 5 kamers kamers waarvan 3 slaapkamers. De geschatte waarde van deze woning is € 250.000.

Bekijk alle woningen in Kern Beneden-Leeuwen

Gegevens van Eengezinswoning, 2-onder-1-kapwoning

Bouwjaar
1977
Geschatte waarde
€ 250.000
Oppervlakte
95 m2
Inhoud
456 m3
Aantal kamers
5 kamers
Slaapkamers
3
Badkamers
1 badkamer en 1 apart toilet
Soort bouw
Bestaande bouw
Eigendomssituatie
Volle eigendom
Ligging
Aan rustige weg, in woonwijk en beschutte ligging
Tuin
Achtertuin en voortuin
Achtertuin
102 m² (12m diep en 8,5m breed)

Voorzieningen in de buurt

Boodschappen0,4 km
Grote supermarkt0,5 km
Cafetaria0,5 km
Restaurant0,6 km
Huisarts0,9 km
Ziekenhuis0,8 km
Kinderdagverblijf0,7 km
BSO0,7 km
Alle voorzieningen in Kern Beneden-Leeuwen

Binnenkijken bij Appelstraat 35 te Beneden-Leeuwen

Meer meldingen in deze omgeving

Nieuw bedrijf
Maart 2026
Ringkade 3a, 6658AV Beneden-Leeuwen

Binnenkijken bij
Zondag 15-3-2026
van Heemstraweg 8402, 6658KK Beneden-Leeuwen

112 melding
Donderdag 12-3-2026 om 10:36
Molenlaan, 6658BP Beneden-Leeuwen

Binnenkijken bij
Donderdag 12-3-2026
Burg. Dittersstraat 31, 6658BS Beneden-Leeuwen

112 melding
Woensdag 11-3-2026 om 13:35
Rozenstraat, Beneden-Leeuwen

112 melding
Woensdag 11-3-2026 om 13:33
Rozenstraat, Beneden-Leeuwen

Nieuw bedrijf
Maart 2026
Hogenkamp 15, 6658HA Beneden-Leeuwen

Nieuw bedrijf
Maart 2026
Watersnipstraat 62, 6658GN Beneden-Leeuwen

Direct een e-mail ontvangen bij nieuwe meldingen in deze regio?

Meld je dan GRATIS aan voor de Oozo Alert service voor Kern Beneden-Leeuwen

Instellen

Meer nieuws in Kern Beneden-Leeuwen

Weten hoe eenvoudig het is om af te vallen? Zonder pillen en smeersels en zonder je in het zweet te werken!
Kijk op eenvoudig-afvallen.nl

© 2012 - 2026 OOZO.nl - info@oozo.nl - Gegevens verwijderen? | Disclaimer | Privacy statement