Woning Lijnbaanstraat 10 Beneden-Leeuwen

Lijnbaanstraat 10, 6658BW Beneden-Leeuwen

Ontvang updates voor Kern Beneden-Leeuwen

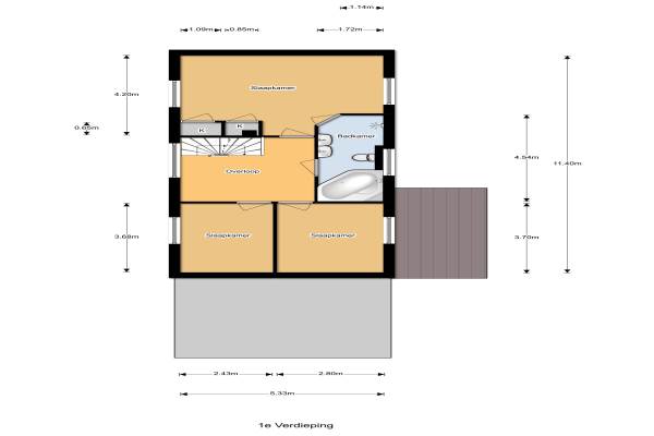
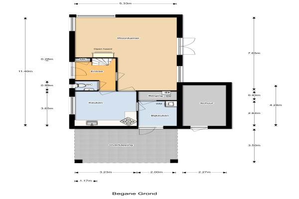
Het adres van deze woning uit 1974 is Lijnbaanstraat 10 te Beneden-Leeuwen. Het pand heeft een oppervlakte van 156m² en een perceeloppervlakte van 399m² en heeft 7 kamers kamers waarvan 5 slaapkamers. De geschatte waarde van deze woning is € 350.000.

Bekijk alle woningen in Kern Beneden-Leeuwen

Gegevens van Eengezinswoning, vrijstaande woning

Bouwjaar
1974
Geschatte waarde
€ 350.000
Oppervlakte
156 m2
Inhoud
567 m3
Aantal kamers
7 kamers
Slaapkamers
5
Badkamers
1 badkamer en 1 apart toilet
Soort bouw
Bestaande bouw
Eigendomssituatie
Volle eigendom
Ligging
Aan rustige weg
Tuin
Achtertuin, voortuin en zijtuin
Achtertuin
95 m² (10m diep en 9,5m breed)

Voorzieningen in de buurt

Boodschappen0,4 km
Grote supermarkt0,5 km
Cafetaria0,5 km
Restaurant0,6 km
Huisarts0,9 km
Ziekenhuis0,8 km
Kinderdagverblijf0,7 km
BSO0,7 km
Alle voorzieningen in Kern Beneden-Leeuwen

Binnenkijken bij Lijnbaanstraat 10 te Beneden-Leeuwen

Meer meldingen in deze omgeving

Nieuw bedrijf
Maart 2026
Ringkade 3a, 6658AV Beneden-Leeuwen

Binnenkijken bij
Zondag 15-3-2026
van Heemstraweg 8402, 6658KK Beneden-Leeuwen

112 melding
Donderdag 12-3-2026 om 10:36
Molenlaan, 6658BP Beneden-Leeuwen

Binnenkijken bij
Donderdag 12-3-2026
Burg. Dittersstraat 31, 6658BS Beneden-Leeuwen

112 melding
Woensdag 11-3-2026 om 13:35
Rozenstraat, Beneden-Leeuwen

112 melding
Woensdag 11-3-2026 om 13:33
Rozenstraat, Beneden-Leeuwen

Nieuw bedrijf
Maart 2026
Hogenkamp 15, 6658HA Beneden-Leeuwen

Nieuw bedrijf
Maart 2026
Watersnipstraat 62, 6658GN Beneden-Leeuwen

Direct een e-mail ontvangen bij nieuwe meldingen in deze regio?

Meld je dan GRATIS aan voor de Oozo Alert service voor Kern Beneden-Leeuwen

Instellen

Meer nieuws in Kern Beneden-Leeuwen

Weten hoe eenvoudig het is om af te vallen? Zonder pillen en smeersels en zonder je in het zweet te werken!
Kijk op eenvoudig-afvallen.nl

© 2012 - 2026 OOZO.nl - info@oozo.nl - Gegevens verwijderen? | Disclaimer | Privacy statement