Woning Heuvelenweg 35 Dwingeloo

Heuvelenweg 35, 7991CM Dwingeloo

Ontvang updates voor Dwingelo

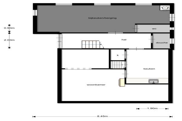
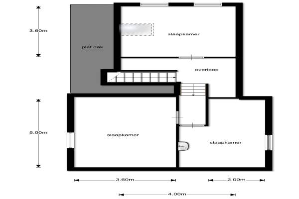
Het adres van deze woning uit 1925 is Heuvelenweg 35 te Dwingeloo. Het pand heeft een oppervlakte van 135m² en een perceeloppervlakte van 2320m² en heeft 4 kamers kamers waarvan 3 slaapkamers. De geschatte waarde van deze woning is € 450.000.

Bekijk alle woningen in Dwingelo

Gegevens van Eengezinswoning, vrijstaande woning

Bouwjaar
1925
Geschatte waarde
€ 450.000
Oppervlakte
135 m2
Inhoud
425 m3
Aantal kamers
4 kamers
Slaapkamers
3
Badkamers
1 badkamer en 1 apart toilet
Soort bouw
Bestaande bouw
Eigendomssituatie
Volle eigendom
Ligging
In centrum, beschutte ligging en in bosrijke omgeving
Tuin
Achtertuin

Voorzieningen in de buurt

Boodschappen0,5 km
Grote supermarkt0,7 km
Cafetaria0,6 km
Restaurant0,5 km
Huisarts1,0 km
Ziekenhuis19,5 km
Kinderdagverblijf1,0 km
BSO1,0 km
Alle voorzieningen in Dwingelo

Binnenkijken bij Heuvelenweg 35 te Dwingeloo

Meer meldingen in deze omgeving

Binnenkijken bij
Vrijdag 12-12-2025
W Jaasmasingel 18, 7991DA Dwingeloo

Nieuw bedrijf
December 2025
Korenweg 8, 7991AJ Dwingeloo

Nieuw bedrijf
December 2025
Stouwmaat 17, 7991EA Dwingeloo

Nieuw bedrijf
November 2025
Levimaat 57, 7991EB Dwingeloo

112 melding
Donderdag 27-11-2025 om 01:46
Entinghehof, 7991CR Dwingeloo

Nieuw bedrijf
November 2025
Berenderweg 11, 7991AV Dwingeloo

Onroerend goed
Woensdag 19-11-2025
Brink 51, 7991CJ Dwingeloo

Binnenkijken bij
Zondag 16-11-2025
Brink 51, 7991CJ Dwingeloo

Direct een e-mail ontvangen bij nieuwe meldingen in deze regio?

Meld je dan GRATIS aan voor de Oozo Alert service voor Dwingelo

Instellen

Meer nieuws in Dwingelo

Weten hoe eenvoudig het is om af te vallen? Zonder pillen en smeersels en zonder je in het zweet te werken!
Kijk op eenvoudig-afvallen.nl

© 2012 - 2025 OOZO.nl - info@oozo.nl - Gegevens verwijderen? | Disclaimer | Privacy statement