Woning Dwarsweg 30 Nijensleek

Dwarsweg 30, 8383EP Nijensleek

Ontvang updates voor Verspreide huizen Nijensleek

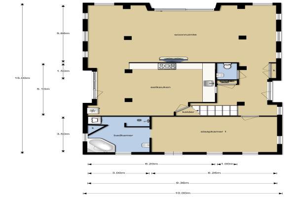
Het adres van deze woning uit 2007 is Dwarsweg 30 te Nijensleek. Het pand heeft een oppervlakte van 192m² en een perceeloppervlakte van 3460m² en heeft 4 kamers kamers waarvan 3 slaapkamers. De geschatte waarde van deze woning is € 595.000.

Bekijk alle woningen in Verspreide huizen Nijensleek

Gegevens van Woonboerderij, vrijstaande woning

Bouwjaar
2007
Geschatte waarde
€ 595.000
Oppervlakte
192 m2
Inhoud
712 m3
Aantal kamers
4 kamers
Slaapkamers
3
Badkamers
1 apart toilet
Soort bouw
Bestaande bouw
Eigendomssituatie
Volle eigendom
Ligging
Aan rustige weg, vrij uitzicht, buiten bebouwde kom en landelijk gelegen
Tuin
Achtertuin, voortuin en zijtuin
Achtertuin
2.550 m² (85m diep en 30m breed)

Voorzieningen in de buurt

Boodschappen3,6 km
Grote supermarkt5,4 km
Cafetaria3,0 km
Restaurant4,0 km
Huisarts3,4 km
Ziekenhuis7,7 km
Kinderdagverblijf2,1 km
BSO2,1 km
Alle voorzieningen in Verspreide huizen Nijensleek

Binnenkijken bij Dwarsweg 30 te Nijensleek

Meer meldingen in deze omgeving

Binnenkijken bij
Zaterdag 14-2-2026
Dwarsweg 4, 8383EN Nijensleek

Nieuw bedrijf
Mei 2025
Dwarsweg 20, 8383EP Nijensleek

Nieuw bedrijf
Maart 2025
Dwarsweg 15, 8383EP Nijensleek

Nieuw bedrijf
Maart 2025
Dwarsweg 3, 8383EN Nijensleek

Bekendmaking
Maandag 14-10-2024
Dwarsweg, 8383EN Nijensleek

Binnenkijken bij
Vrijdag 4-10-2024
Dwarsweg 19, 8383EP Nijensleek

Binnenkijken bij
Vrijdag 5-4-2024
Dwarsweg 8 en 8a, 8383EP Nijensleek

Bekendmaking
Maandag 13-11-2023
Bosschasteeg, 8383EM Nijensleek

Direct een e-mail ontvangen bij nieuwe meldingen in deze regio?

Meld je dan GRATIS aan voor de Oozo Alert service voor Verspreide huizen Nijensleek

Instellen

Meer nieuws in Verspreide huizen Nijensleek

Weten hoe eenvoudig het is om af te vallen? Zonder pillen en smeersels en zonder je in het zweet te werken!
Kijk op eenvoudig-afvallen.nl

© 2012 - 2026 OOZO.nl - info@oozo.nl - Gegevens verwijderen? | Disclaimer | Privacy statement