Woning 't Bakhuys 16 Westervoort

't Bakhuys 16, 6932LJ Westervoort

Ontvang updates voor De Ganzepoel-Schans

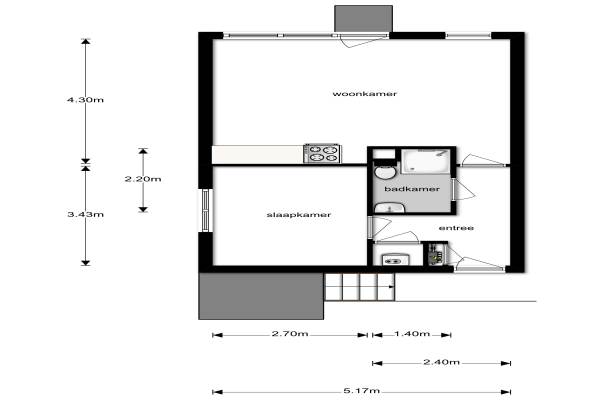
Het adres van deze woning uit 1984 is 't Bakhuys 16 te Westervoort. Het pand heeft een oppervlakte van 45m² en heeft 2 kamers kamers waarvan 1 slaapkamers. De geschatte waarde van deze woning is € 95.000.

Bekijk alle woningen in De Ganzepoel-Schans

Gegevens van Benedenwoning (appartement met open portiek)

Bouwjaar
1984
Geschatte waarde
€ 95.000
Oppervlakte
45 m2
Inhoud
150 m3
Aantal kamers
2 kamers
Slaapkamers
1
Soort bouw
Bestaande bouw
Eigendomssituatie
Volle eigendom
Ligging
In woonwijk
Tuin
Achtertuin en voortuin
Achtertuin
55 m² (11m diep en 5m breed)

Voorzieningen in de buurt

Boodschappen0,5 km
Grote supermarkt0,5 km
Cafetaria0,5 km
Restaurant1,6 km
Huisarts0,5 km
Ziekenhuis6,3 km
Kinderdagverblijf0,5 km
BSO0,7 km
Alle voorzieningen in De Ganzepoel-Schans

Binnenkijken bij 't Bakhuys 16 te Westervoort

Meer meldingen in deze omgeving

112 melding
Vrijdag 13-3-2026 om 07:24
Het Geerken, 6932MX Westervoort

112 melding
Vrijdag 13-3-2026 om 07:24
Het Geerken, 6932MX Westervoort

112 melding
Vrijdag 13-3-2026 om 07:22
Het Geerken, 6932MZ Westervoort

Nieuw bedrijf
Maart 2026
Lange Griet 4, 6932ME Westervoort

112 melding
Donderdag 12-3-2026 om 17:38
Heegsche Bouwing, 6932MW Westervoort

112 melding
Donderdag 12-3-2026 om 17:38
Heegsche Bouwing, 6932MW Westervoort

112 melding
Donderdag 12-3-2026 om 17:38
Heegsche Bouwing, 6932MW Westervoort

112 melding
Donderdag 12-3-2026 om 14:32
Heegsche Bouwing, 6932MW Westervoort

Direct een e-mail ontvangen bij nieuwe meldingen in deze regio?

Meld je dan GRATIS aan voor de Oozo Alert service voor De Ganzepoel-Schans

Instellen

Meer nieuws in De Ganzepoel-Schans

Weten hoe eenvoudig het is om af te vallen? Zonder pillen en smeersels en zonder je in het zweet te werken!
Kijk op eenvoudig-afvallen.nl

© 2012 - 2026 OOZO.nl - info@oozo.nl - Gegevens verwijderen? | Disclaimer | Privacy statement