Woning Haagweg 41 Monster

Haagweg 41, 2681PB Monster

Ontvang updates voor Westlandse Zoom De Duinen

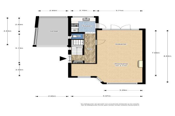
Het adres van deze woning uit 1933 is Haagweg 41 te Monster. Het pand heeft een oppervlakte van 127m² en een perceeloppervlakte van 356m² en heeft 4 kamers kamers waarvan 3 slaapkamers. De geschatte waarde van deze woning is € 495.000.

Bekijk alle woningen in Westlandse Zoom De Duinen

Gegevens van Eengezinswoning, 2-onder-1-kapwoning

Bouwjaar
1933
Geschatte waarde
€ 495.000
Oppervlakte
127 m2
Inhoud
473 m3
Aantal kamers
4 kamers
Slaapkamers
3
Badkamers
2 badkamers en 1 apart toilet
Soort bouw
Bestaande bouw
Eigendomssituatie
Volle eigendom
Ligging
Vrij uitzicht
Tuin
Achtertuin, voortuin en zijtuin
Achtertuin
132 m² (16,5m diep en 8m breed)

Voorzieningen in de buurt

Boodschappen1,7 km
Grote supermarkt1,8 km
Cafetaria1,8 km
Restaurant1,8 km
Huisarts1,9 km
Ziekenhuis5,7 km
Kinderdagverblijf1,8 km
BSO1,7 km
Alle voorzieningen in Westlandse Zoom De Duinen

Binnenkijken bij Haagweg 41 te Monster

Meer meldingen in deze omgeving

Binnenkijken bij
Dinsdag 24-3-2026
Santhorsthof 54, 2681ME Monster

Binnenkijken bij
Zaterdag 28-2-2026
Haagweg 73, 2681PB Monster

Binnenkijken bij
Zondag 25-1-2026
Haagweg 147, 2681PD Monster

Binnenkijken bij
Donderdag 22-1-2026
Santhorsthof 37, 2681ME Monster

Nieuw bedrijf
Januari 2026
Haagweg 141, 2681PD Monster

Nieuw bedrijf
Januari 2026
Santhorsthof 1, 2681ME Monster

112 melding
Zaterdag 20-12-2025 om 21:30
Santhorsthof, 2681ME Monster

Binnenkijken bij
Woensdag 26-11-2025
Santhorsthof 22, 2681ME Monster

Direct een e-mail ontvangen bij nieuwe meldingen in deze regio?

Meld je dan GRATIS aan voor de Oozo Alert service voor Westlandse Zoom De Duinen

Instellen

Meer nieuws in Westlandse Zoom De Duinen

Weten hoe eenvoudig het is om af te vallen? Zonder pillen en smeersels en zonder je in het zweet te werken!
Kijk op eenvoudig-afvallen.nl

© 2012 - 2026 OOZO.nl - info@oozo.nl - Gegevens verwijderen? | Disclaimer | Privacy statement