Woning Zeepaddestoel 3 Naaldwijk

Zeepaddestoel 3, 2673BR Naaldwijk

Ontvang updates voor Woerdblok

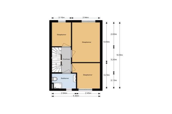
Het adres van deze woning uit 2006 is Zeepaddestoel 3 te Naaldwijk. Het pand heeft een oppervlakte van 134m² en een perceeloppervlakte van 143m² en heeft 5 kamers kamers waarvan 4 slaapkamers. De geschatte waarde van deze woning is € 595.000.

Bekijk alle woningen in Woerdblok

Gegevens van Eengezinswoning, tussenwoning

Bouwjaar
2006
Geschatte waarde
€ 595.000
Oppervlakte
134 m2
Inhoud
470 m3
Aantal kamers
5 kamers
Slaapkamers
4
Badkamers
2 badkamers en 1 apart toilet
Soort bouw
Bestaande bouw
Eigendomssituatie
Volle eigendom
Tuin
Achtertuin en voortuin
Achtertuin
66 m² (12,30 meter diep en 5,40 meter breed)

Voorzieningen in de buurt

Boodschappen0,9 km
Grote supermarkt1,3 km
Cafetaria0,8 km
Restaurant1,3 km
Huisarts1,3 km
Ziekenhuis2,0 km
Kinderdagverblijf0,5 km
BSO0,4 km
Alle voorzieningen in Woerdblok

Binnenkijken bij Zeepaddestoel 3 te Naaldwijk

Meer meldingen in deze omgeving

112 melding
Donderdag 7-5-2026 om 09:05
Zandheuvelweg, 2673GG Naaldwijk

112 melding
Dinsdag 5-5-2026 om 17:00
Zandheuvelweg, 2673GG Naaldwijk

Binnenkijken bij
Dinsdag 5-5-2026
Schiereiland 1, 2673CX Naaldwijk

Binnenkijken bij
Dinsdag 5-5-2026
Noordkaper 2, 2673CC Naaldwijk

Binnenkijken bij
Dinsdag 5-5-2026
Schiereiland 36, 2673CX Naaldwijk

112 melding
Maandag 4-5-2026 om 19:38
Zandheuvelweg, 2673GG Naaldwijk

112 melding
Zaterdag 2-5-2026 om 11:00
Schiereiland, Naaldwijk

112 melding
Vrijdag 1-5-2026 om 08:18
De Dommel, Naaldwijk

Direct een e-mail ontvangen bij nieuwe meldingen in deze regio?

Meld je dan GRATIS aan voor de Oozo Alert service voor Woerdblok

Instellen

Meer nieuws in Woerdblok

Weten hoe eenvoudig het is om af te vallen? Zonder pillen en smeersels en zonder je in het zweet te werken!
Kijk op eenvoudig-afvallen.nl

© 2012 - 2026 OOZO.nl - info@oozo.nl - Gegevens verwijderen? | Disclaimer | Privacy statement