Woning De Muscaat 26 Wateringen

De Muscaat 26, 2291JH Wateringen

Ontvang updates voor Plan Zuid

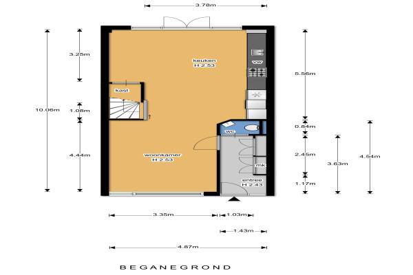
Het adres van deze woning uit 1977 is De Muscaat 26 te Wateringen. Het pand heeft een oppervlakte van 133m² en een perceeloppervlakte van 128m² en heeft 5 kamers kamers waarvan 4 slaapkamers. De geschatte waarde van deze woning is € 319.000.

Bekijk alle woningen in Plan Zuid

Gegevens van Eengezinswoning, tussenwoning

Bouwjaar
1977
Geschatte waarde
€ 319.000
Oppervlakte
133 m2
Inhoud
434 m3
Aantal kamers
5 kamers
Slaapkamers
4
Badkamers
1 apart toilet
Soort bouw
Bestaande bouw
Eigendomssituatie
Volle eigendom
Ligging
Aan rustige weg en in woonwijk
Tuin
Achtertuin en voortuin
Achtertuin
40 m² (8,05m diep en 5,03m breed)

Voorzieningen in de buurt

Boodschappen0,5 km
Grote supermarkt0,7 km
Cafetaria0,5 km
Restaurant0,5 km
Huisarts0,4 km
Ziekenhuis5,0 km
Kinderdagverblijf0,5 km
BSO0,7 km
Alle voorzieningen in Plan Zuid

Binnenkijken bij De Muscaat 26 te Wateringen

Meer meldingen in deze omgeving

112 melding
Vrijdag 16-1-2026 om 12:01
Arkpaviljoen, Wateringen

112 melding
Vrijdag 16-1-2026 om 11:06
Oostblok, Wateringen

112 melding
Zondag 11-1-2026 om 13:33
Arkpaviljoen, Wateringen

112 melding
Zondag 11-1-2026 om 12:12
De WilDe Zee, 2291XM Wateringen

Binnenkijken bij
Vrijdag 9-1-2026
De Nesse 13, 2291XN Wateringen

112 melding
Maandag 5-1-2026 om 12:44
De Frankenthaler, Wateringen

112 melding
Zaterdag 3-1-2026 om 00:04
Azaleapark, 2291AL Wateringen

112 melding
Donderdag 1-1-2026 om 11:59
Lenteblok, Wateringen

Direct een e-mail ontvangen bij nieuwe meldingen in deze regio?

Meld je dan GRATIS aan voor de Oozo Alert service voor Plan Zuid

Instellen

Meer nieuws in Plan Zuid

Weten hoe eenvoudig het is om af te vallen? Zonder pillen en smeersels en zonder je in het zweet te werken!
Kijk op eenvoudig-afvallen.nl

© 2012 - 2026 OOZO.nl - info@oozo.nl - Gegevens verwijderen? | Disclaimer | Privacy statement