Woning Noordwolderweg 67 Vinkega

Noordwolderweg 67, 8393RD Vinkega

Ontvang updates voor Vinkega

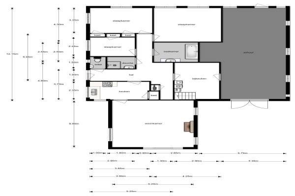
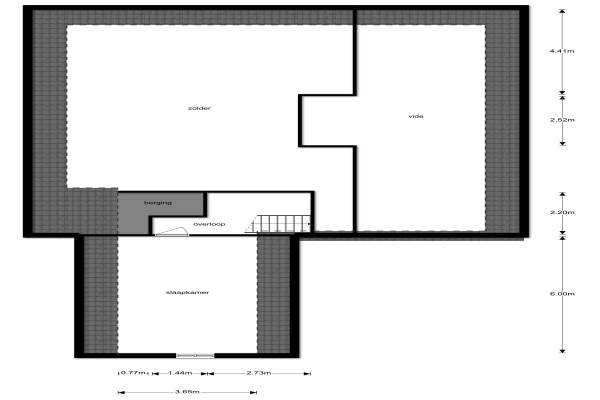
Het adres van deze woning uit 1920 is Noordwolderweg 67 te Vinkega. Het pand heeft een oppervlakte van 145m² en een perceeloppervlakte van 1465m² en heeft 5 kamers kamers waarvan 4 slaapkamers. De geschatte waarde van deze woning is € 235.000.

Bekijk alle woningen in Vinkega

Gegevens van Eengezinswoning, vrijstaande woning

Bouwjaar
1920
Geschatte waarde
€ 235.000
Oppervlakte
145 m2
Inhoud
795 m3
Aantal kamers
5 kamers
Slaapkamers
4
Badkamers
2 badkamers en 1 apart toilet
Soort bouw
Bestaande bouw
Eigendomssituatie
Volle eigendom
Ligging
Vrij uitzicht, open ligging en buiten bebouwde kom
Tuin
Tuin rondom

Voorzieningen in de buurt

Boodschappen4,7 km
Grote supermarkt4,8 km
Cafetaria0,4 km
Restaurant1,1 km
Huisarts0,8 km
Ziekenhuis8,1 km
Kinderdagverblijf0,4 km
BSO2,5 km
Alle voorzieningen in Vinkega

Binnenkijken bij Noordwolderweg 67 te Vinkega

Meer meldingen in deze omgeving

Nieuw bedrijf
December 2025
Schoollaan 3, 8393RE Vinkega

Binnenlands nieuws
Maandag 15-12-2025
Vinkega

Binnenkijken bij
Vrijdag 12-12-2025
Noordwolderweg 48, 8393RG Vinkega

Binnenlands nieuws
Donderdag 11-12-2025
Vinkega

Binnenlands nieuws
Maandag 8-12-2025
Vinkega

Binnenlands nieuws
Maandag 8-12-2025
Vinkega

Binnenlands nieuws
Zondag 23-11-2025
Vinkega

Nieuw bedrijf
Oktober 2025
Noordwolderweg 21, 8393RC Vinkega

Direct een e-mail ontvangen bij nieuwe meldingen in deze regio?

Meld je dan GRATIS aan voor de Oozo Alert service voor Vinkega

Instellen

Meer nieuws in Vinkega

Weten hoe eenvoudig het is om af te vallen? Zonder pillen en smeersels en zonder je in het zweet te werken!
Kijk op eenvoudig-afvallen.nl

© 2012 - 2025 OOZO.nl - info@oozo.nl - Gegevens verwijderen? | Disclaimer | Privacy statement