Woning Boomweg 15 Rockanje

Boomweg 15, 3235NG Rockanje

Ontvang updates voor Strijpe

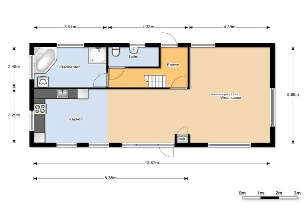
Het adres van deze woning uit 1971 is Boomweg 15 te Rockanje. Het pand heeft een oppervlakte van 116m² en een perceeloppervlakte van 990m² en heeft 3 kamers kamers waarvan 2 slaapkamers. De geschatte waarde van deze woning is € 485.000.

Bekijk alle woningen in Strijpe

Gegevens van Bungalow, vrijstaande woning

Bouwjaar
1971
Geschatte waarde
€ 485.000
Oppervlakte
116 m2
Inhoud
353 m3
Aantal kamers
3 kamers
Slaapkamers
2
Badkamers
1 badkamer
Soort bouw
Bestaande bouw
Eigendomssituatie
Volle eigendom
Ligging
Aan drukke weg, vrij uitzicht en landelijk gelegen
Tuin
Tuin rondom

Voorzieningen in de buurt

Boodschappen2,4 km
Grote supermarkt2,4 km
Cafetaria2,4 km
Restaurant2,0 km
Huisarts2,4 km
Ziekenhuis7,8 km
Kinderdagverblijf1,6 km
BSO1,6 km
Alle voorzieningen in Strijpe

Binnenkijken bij Boomweg 15 te Rockanje

Meer meldingen in deze omgeving

112 melding
Maandag 5-1-2026 om 13:37
Boomweg, 3235NH Rockanje

112 melding
Zondag 4-1-2026 om 13:18
Boomweg, 3235NH Rockanje

112 melding
Zondag 4-1-2026 om 13:18
Boomweg, 3235NH Rockanje

112 melding
Zaterdag 20-12-2025 om 12:10
Achterstrypseweg, 3235NB Rockanje

112 melding
Zaterdag 20-12-2025 om 12:09
Achterstrypseweg, 3235NB Rockanje

Binnenkijken bij
Zaterdag 20-12-2025
Achterstrypseweg 11, 3235NB Rockanje

112 melding
Zondag 2-11-2025 om 13:43
Verl Lodderlandsedijk, 3235NT Rockanje

112 melding
Zondag 2-11-2025 om 13:20
Verl Lodderlandsedijk, 3235NT Rockanje

Direct een e-mail ontvangen bij nieuwe meldingen in deze regio?

Meld je dan GRATIS aan voor de Oozo Alert service voor Strijpe

Instellen

Meer nieuws in Strijpe

Weten hoe eenvoudig het is om af te vallen? Zonder pillen en smeersels en zonder je in het zweet te werken!
Kijk op eenvoudig-afvallen.nl

© 2012 - 2026 OOZO.nl - info@oozo.nl - Gegevens verwijderen? | Disclaimer | Privacy statement