Woning Erve Effinck 5 Enter

Erve Effinck 5, 7468JG Enter

Ontvang updates voor Enter-Oost

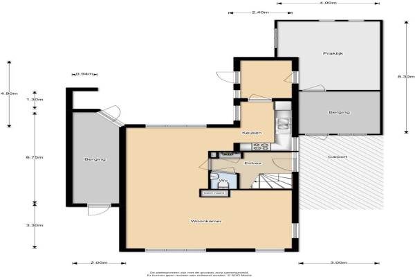
Het adres van deze woning uit 1984 is Erve Effinck 5 te Enter. Het pand heeft een oppervlakte van 125m² en een perceeloppervlakte van 324m² en heeft 6 kamers kamers waarvan 3 slaapkamers. De geschatte waarde van deze woning is € 279.000.

Bekijk alle woningen in Enter-Oost

Gegevens van Eengezinswoning, vrijstaande woning

Bouwjaar
1984
Geschatte waarde
€ 279.000
Oppervlakte
125 m2
Inhoud
440 m3
Aantal kamers
6 kamers
Slaapkamers
3
Badkamers
2 aparte toiletten
Soort bouw
Bestaande bouw
Eigendomssituatie
Volle eigendom
Ligging
In woonwijk
Tuin
Achtertuin en voortuin
Achtertuin
121 m² (11m diep en 11m breed)

Voorzieningen in de buurt

Boodschappen0,6 km
Grote supermarkt0,6 km
Cafetaria0,8 km
Restaurant0,5 km
Huisarts0,5 km
Ziekenhuis5,4 km
Kinderdagverblijf0,5 km
BSO0,9 km
Alle voorzieningen in Enter-Oost

Binnenkijken bij Erve Effinck 5 te Enter

Meer meldingen in deze omgeving

Nieuw bedrijf
November 2025
Erve Roerinck 54, 7468JN Enter

Binnenkijken bij
Vrijdag 21-11-2025
Erve Roerinck 62, 7468JN Enter

Binnenkijken bij
Dinsdag 11-11-2025
Reggestraat 97B, 7468EJ Enter

Nieuw bedrijf
Oktober 2025
Brinkstraat 24, 7468CZ Enter

Binnenkijken bij
Vrijdag 17-10-2025
Voormors 20, 7468HA Enter

Binnenkijken bij
Donderdag 9-10-2025
Ypeloweg 2D, 7468RB Enter

Nieuw bedrijf
Augustus 2025
Meestershof 4, 7468GN Enter

Nieuw bedrijf
Juli 2025
Reggestraat 73, 7468EJ ENTER

Direct een e-mail ontvangen bij nieuwe meldingen in deze regio?

Meld je dan GRATIS aan voor de Oozo Alert service voor Enter-Oost

Instellen

Meer nieuws in Enter-Oost

Weten hoe eenvoudig het is om af te vallen? Zonder pillen en smeersels en zonder je in het zweet te werken!
Kijk op eenvoudig-afvallen.nl

© 2012 - 2025 OOZO.nl - info@oozo.nl - Gegevens verwijderen? | Disclaimer | Privacy statement