Woning Erve De Plecht 13 Enter

Erve De Plecht 13, 7468JP Enter

Ontvang updates voor Enter-Oost

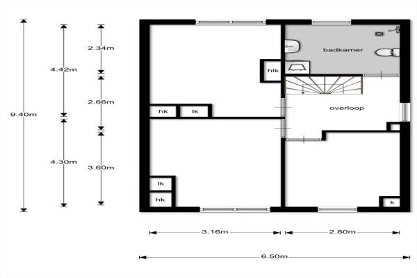
Het adres van deze woning uit 1989 is Erve De Plecht 13 te Enter. Het pand heeft een oppervlakte van 138m² en een perceeloppervlakte van 278m² en heeft 5 kamers kamers waarvan 4 slaapkamers.

Bekijk alle woningen in Enter-Oost

Gegevens van Eengezinswoning, 2-onder-1-kapwoning

Bouwjaar
1989
Geschatte waarde
€ 0
Oppervlakte
138 m2
Inhoud
475 m3
Aantal kamers
5 kamers
Slaapkamers
4
Badkamers
1 badkamer en 1 apart toilet
Soort bouw
Bestaande bouw
Eigendomssituatie
Volle eigendom
Ligging
In woonwijk en aan rustige weg
Tuin
Achtertuin en voortuin
Achtertuin
100 m² (10m diep en 10m breed)

Voorzieningen in de buurt

Boodschappen0,6 km
Grote supermarkt0,6 km
Cafetaria0,8 km
Restaurant0,5 km
Huisarts0,5 km
Ziekenhuis5,4 km
Kinderdagverblijf0,5 km
BSO0,9 km
Alle voorzieningen in Enter-Oost

Binnenkijken bij Erve De Plecht 13 te Enter

Meer meldingen in deze omgeving

Binnenkijken bij
Woensdag 18-2-2026
Hollanderdijk 2, 7468ML Enter

Faillissement
Donderdag 12-2-2026
Erve Roerinck 36, 7468JN Enter

Binnenkijken bij
Zaterdag 7-2-2026
Voormors 59, 7468HH Enter

Faillissement
Dinsdag 3-2-2026
Reggestraat 73, 7468EJ Enter

Nieuw bedrijf
Januari 2026
Sportlaan 2, 7468GA Enter

Nieuw bedrijf
Januari 2026
Reggestraat 73, 7468EJ Enter

112 melding
Dinsdag 20-1-2026 om 20:55
Erve Borgerinck, Enter

Binnenkijken bij
Donderdag 15-1-2026
Brinkstraat 17, 7468CZ Enter

Direct een e-mail ontvangen bij nieuwe meldingen in deze regio?

Meld je dan GRATIS aan voor de Oozo Alert service voor Enter-Oost

Instellen

Meer nieuws in Enter-Oost

Weten hoe eenvoudig het is om af te vallen? Zonder pillen en smeersels en zonder je in het zweet te werken!
Kijk op eenvoudig-afvallen.nl

© 2012 - 2026 OOZO.nl - info@oozo.nl - Gegevens verwijderen? | Disclaimer | Privacy statement