Woning Woeziksestraat 67 Wijchen

Woeziksestraat 67, 6604CL Wijchen

Ontvang updates voor Woezik

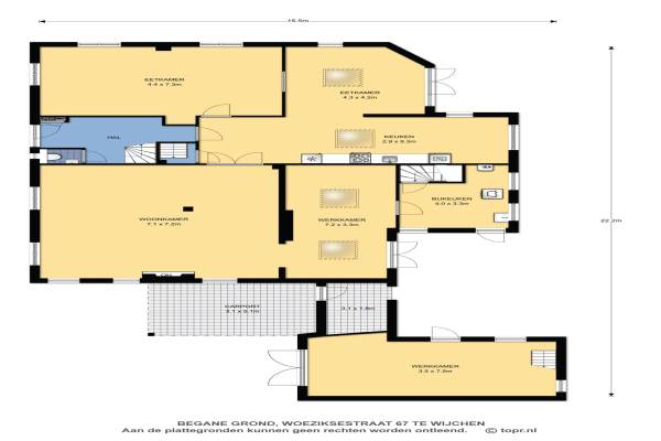
Het adres van deze woning uit 1923 is Woeziksestraat 67 te Wijchen. Het pand heeft een oppervlakte van 350m² en een perceeloppervlakte van 1314m² en heeft 11 kamers kamers waarvan 4 slaapkamers. De geschatte waarde van deze woning is € 775.000.

Bekijk alle woningen in Woezik

Gegevens van Woonboerderij, vrijstaande woning

Bouwjaar
1923
Geschatte waarde
€ 775.000
Oppervlakte
350 m2
Inhoud
900 m3
Aantal kamers
11 kamers
Slaapkamers
4
Badkamers
2 badkamers
Soort bouw
Bestaande bouw
Eigendomssituatie
Volle eigendom
Ligging
Aan rustige weg
Tuin
Achtertuin en voortuin

Voorzieningen in de buurt

Boodschappen0,6 km
Grote supermarkt0,4 km
Cafetaria0,7 km
Restaurant0,3 km
Huisarts1,2 km
Ziekenhuis8,3 km
Kinderdagverblijf0,6 km
BSO0,6 km
Alle voorzieningen in Woezik

Binnenkijken bij Woeziksestraat 67 te Wijchen

Meer meldingen in deze omgeving

Binnenkijken bij
Vrijdag 14-11-2025
Heuvelstraat 22, 6604AH Wijchen

Binnenkijken bij
Zondag 19-10-2025
Donkerstraat 32, 6604GJ Wijchen

Binnenkijken bij
Donderdag 9-10-2025
Donkerstraat 36, 6604GJ Wijchen

Nieuw bedrijf
Juli 2025
Suikerbergseweg 10, 6604AE Wijchen

Binnenkijken bij
Dinsdag 17-6-2025
Woeziksestraat 338A, 6604CC Wijchen

Nieuw bedrijf
April 2025
De Passerot 2, 6604AB Wijchen

Bekendmaking
Woensdag 19-3-2025
De Passerot, 6604AB Wijchen

Nieuw bedrijf
Maart 2025
Woeziksestraat 50, 6604CM Wijchen

Direct een e-mail ontvangen bij nieuwe meldingen in deze regio?

Meld je dan GRATIS aan voor de Oozo Alert service voor Woezik

Instellen

Meer nieuws in Woezik

Weten hoe eenvoudig het is om af te vallen? Zonder pillen en smeersels en zonder je in het zweet te werken!
Kijk op eenvoudig-afvallen.nl

© 2012 - 2025 OOZO.nl - info@oozo.nl - Gegevens verwijderen? | Disclaimer | Privacy statement