Woning Overmeerseweg 26 Nederhorst den Berg

Overmeerseweg 26, 1394BD Nederhorst den Berg

Ontvang updates voor Blijkpolder

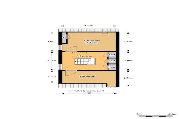
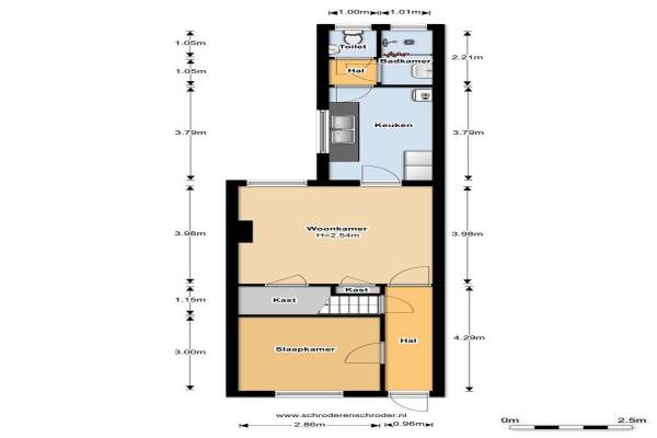
Het adres van deze woning uit 1909 is Overmeerseweg 26 te Nederhorst den Berg. Het pand heeft een oppervlakte van 77m² en een perceeloppervlakte van 226m² en heeft 4 kamers kamers waarvan 2 slaapkamers. De geschatte waarde van deze woning is € 209.000.

Bekijk alle woningen in Blijkpolder

Gegevens van Eengezinswoning, hoekwoning

Bouwjaar
1909
Geschatte waarde
€ 209.000
Oppervlakte
77 m2
Inhoud
290 m3
Aantal kamers
4 kamers
Slaapkamers
2
Badkamers
1 apart toilet
Soort bouw
Bestaande bouw
Eigendomssituatie
Volle eigendom
Ligging
Aan rustige weg, aan water, beschutte ligging, in centrum en vrij uitzicht
Tuin
Achtertuin, voortuin en zijtuin
Achtertuin
111 m² (18,5m diep en 6m breed)

Voorzieningen in de buurt

Boodschappen0,7 km
Grote supermarkt0,7 km
Cafetaria0,5 km
Restaurant0,6 km
Huisarts0,7 km
Ziekenhuis9,1 km
Kinderdagverblijf0,4 km
BSO0,6 km
Alle voorzieningen in Blijkpolder

Binnenkijken bij Overmeerseweg 26 te Nederhorst den Berg

Meer meldingen in deze omgeving

Nieuw bedrijf
Januari 2026
Overmeerseweg 8, 1394BC Nederhorst den Berg

112 melding
Maandag 19-1-2026 om 09:59
Overmeerseweg, 1394BC Nederhorst den Berg

112 melding
Zondag 18-1-2026 om 11:51
Overmeerseweg, 1394BC Nederhorst den Berg

112 melding
Donderdag 15-1-2026 om 11:49
Lange Wetering, 1394LP Nederhorst den Berg

112 melding
Dinsdag 13-1-2026 om 09:25
Randweg, 1394NA Nederhorst den Berg

Binnenkijken bij
Zondag 11-1-2026
Turfstekerslaan 11, 1394KX Nederhorst den Berg

Binnenkijken bij
Woensdag 7-1-2026
Lange Wetering 65, 1394KE Nederhorst den Berg

112 melding
Woensdag 31-12-2025 om 22:22
Blijklaan, Nederhorst den Berg

Direct een e-mail ontvangen bij nieuwe meldingen in deze regio?

Meld je dan GRATIS aan voor de Oozo Alert service voor Blijkpolder

Instellen

Meer nieuws in Blijkpolder

Weten hoe eenvoudig het is om af te vallen? Zonder pillen en smeersels en zonder je in het zweet te werken!
Kijk op eenvoudig-afvallen.nl

© 2012 - 2026 OOZO.nl - info@oozo.nl - Gegevens verwijderen? | Disclaimer | Privacy statement