Woning 2e Gasthuisstraat 23 Winterswijk

2e Gasthuisstraat 23, 7101EA Winterswijk

Ontvang updates voor Centrale deel

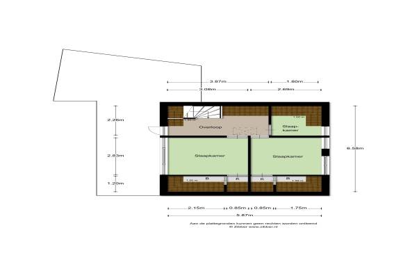
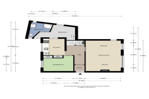
Het adres van deze woning uit 1910 is 2e Gasthuisstraat 23 te Winterswijk. Het pand heeft een oppervlakte van 98m² en een perceeloppervlakte van 120m² en heeft 5 kamers kamers waarvan 4 slaapkamers. De geschatte waarde van deze woning is € 119.500.

Bekijk alle woningen in Centrale deel

Gegevens van Eengezinswoning, vrijstaande woning

Bouwjaar
1910
Geschatte waarde
€ 119.500
Oppervlakte
98 m2
Inhoud
362 m3
Aantal kamers
5 kamers
Slaapkamers
4
Badkamers
1 badkamer
Soort bouw
Bestaande bouw
Eigendomssituatie
Volle eigendom
Ligging
Aan rustige weg, in centrum, in woonwijk en beschutte ligging
Tuin
Achtertuin en zijtuin
Achtertuin
15 m² (5m diep en 3m breed)

Voorzieningen in de buurt

Boodschappen0,2 km
Grote supermarkt0,3 km
Cafetaria0,2 km
Restaurant0,3 km
Huisarts0,3 km
Ziekenhuis1,8 km
Kinderdagverblijf0,4 km
BSO0,5 km
Alle voorzieningen in Centrale deel

Binnenkijken bij 2e Gasthuisstraat 23 te Winterswijk

Meer meldingen in deze omgeving

Binnenkijken bij
Donderdag 15-1-2026
De Starckenrode 39, 7101NW Winterswijk

112 melding
Maandag 12-1-2026 om 18:05
Weurden, Winterswijk

112 melding
Maandag 12-1-2026 om 18:05
Weurden, Winterswijk

112 melding
Maandag 12-1-2026 om 16:25
Misterstraat, Winterswijk

112 melding
Maandag 12-1-2026 om 16:19
Misterstraat, Winterswijk

Binnenkijken bij
Zaterdag 10-1-2026
Rembrandtstraat 1, 7103AE Winterswijk

Binnenkijken bij
Zaterdag 10-1-2026
Goudvinkenstraat 24, 7101GK Winterswijk

Binnenkijken bij
Maandag 5-1-2026
Stationsstraat 5, 7101GH Winterswijk

Direct een e-mail ontvangen bij nieuwe meldingen in deze regio?

Meld je dan GRATIS aan voor de Oozo Alert service voor Centrale deel

Instellen

Meer nieuws in Centrale deel

Weten hoe eenvoudig het is om af te vallen? Zonder pillen en smeersels en zonder je in het zweet te werken!
Kijk op eenvoudig-afvallen.nl

© 2012 - 2026 OOZO.nl - info@oozo.nl - Gegevens verwijderen? | Disclaimer | Privacy statement