Woning Sint-Elisabethgaarde 19 Winterswijk

Sint-Elisabethgaarde 19, 7103ZZ Winterswijk

Ontvang updates voor Winterswijk-Noordoost

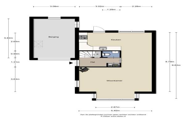
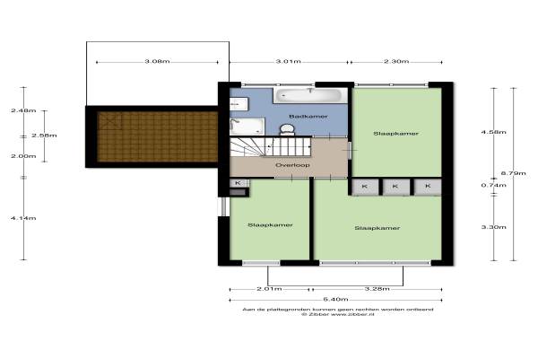
Het adres van deze woning uit 1998 is Sint-Elisabethgaarde 19 te Winterswijk. Het pand heeft een oppervlakte van 125m² en een perceeloppervlakte van 257m² en heeft 6 kamers kamers waarvan 4 slaapkamers. De geschatte waarde van deze woning is € 259.500.

Bekijk alle woningen in Winterswijk-Noordoost

Gegevens van Eengezinswoning, geschakelde 2-onder-1-kapwoning

Bouwjaar
1998
Geschatte waarde
€ 259.500
Oppervlakte
125 m2
Inhoud
510 m3
Aantal kamers
6 kamers
Slaapkamers
4
Badkamers
1 badkamer en 1 apart toilet
Soort bouw
Bestaande bouw
Eigendomssituatie
Volle eigendom
Ligging
Aan rustige weg en in woonwijk
Tuin
Achtertuin en voortuin
Achtertuin
110 m² (11m diep en 10m breed)

Voorzieningen in de buurt

Boodschappen0,7 km
Grote supermarkt0,9 km
Cafetaria0,4 km
Restaurant0,7 km
Huisarts1,0 km
Ziekenhuis2,4 km
Kinderdagverblijf0,6 km
BSO1,4 km
Alle voorzieningen in Winterswijk-Noordoost

Binnenkijken bij Sint-Elisabethgaarde 19 te Winterswijk

Meer meldingen in deze omgeving

Nieuw bedrijf
Oktober 2025
P. Lieftincklaan 23, 7103JA Winterswijk

112 melding
Zondag 28-9-2025 om 13:33
Bilderdijkstraat, 7103XA Winterswijk

112 melding
Zaterdag 27-9-2025 om 23:56
C.P.M. Rommelaan, Winterswijk

Binnenkijken bij
Vrijdag 26-9-2025
Kobstederstraat 2, 7103ZS Winterswijk

Binnenkijken bij
Maandag 22-9-2025
Singelweg 2B, 7101MH Winterswijk

Binnenkijken bij
Vrijdag 19-9-2025
ter Woordstraat 11, 7103ZV Winterswijk

Binnenkijken bij
Vrijdag 19-9-2025
Sint-Elisabethgaarde 29, 7103ZZ Winterswijk

Binnenkijken bij
Vrijdag 19-9-2025
Verlengde Ratumsestraat 27, 7101MN Winterswijk

Direct een e-mail ontvangen bij nieuwe meldingen in deze regio?

Meld je dan GRATIS aan voor de Oozo Alert service voor Winterswijk-Noordoost

Instellen

Meer nieuws in Winterswijk-Noordoost

Weten hoe eenvoudig het is om af te vallen? Zonder pillen en smeersels en zonder je in het zweet te werken!
Kijk op eenvoudig-afvallen.nl

© 2012 - 2025 OOZO.nl - info@oozo.nl - Gegevens verwijderen? | Disclaimer | Privacy statement