Woning Bocholtsestraat 37 Winterswijk

Bocholtsestraat 37, 7102BT Winterswijk

Ontvang updates voor Winterswijk-Zuidwest

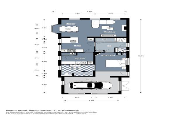
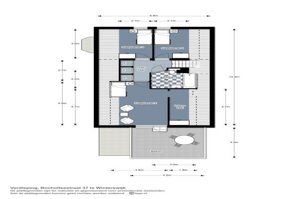
Het adres van deze woning uit 1900 is Bocholtsestraat 37 te Winterswijk. Het pand heeft een oppervlakte van 143m² en een perceeloppervlakte van 275m² en heeft 5 kamers kamers waarvan 4 slaapkamers. De geschatte waarde van deze woning is € 249.500.

Bekijk alle woningen in Winterswijk-Zuidwest

Gegevens van Eengezinswoning, vrijstaande woning

Bouwjaar
1900
Geschatte waarde
€ 249.500
Oppervlakte
143 m2
Inhoud
550 m3
Aantal kamers
5 kamers
Slaapkamers
4
Badkamers
2 badkamers en 1 apart toilet
Soort bouw
Bestaande bouw
Eigendomssituatie
Volle eigendom
Ligging
Aan rustige weg en in woonwijk
Tuin
Achtertuin en zijtuin
Achtertuin
77 m² (9m diep en 8,5m breed)

Voorzieningen in de buurt

Boodschappen0,4 km
Grote supermarkt0,6 km
Cafetaria0,4 km
Restaurant0,5 km
Huisarts1,2 km
Ziekenhuis1,8 km
Kinderdagverblijf0,4 km
BSO1,0 km
Alle voorzieningen in Winterswijk-Zuidwest

Binnenkijken bij Bocholtsestraat 37 te Winterswijk

Meer meldingen in deze omgeving

Nieuw bedrijf
November 2025
Dahliastraat 25, 7102KA Winterswijk

112 melding
Maandag 17-11-2025 om 10:59
Tinbergenstraat, Winterswijk

Binnenkijken bij
Zondag 16-11-2025
Rozenstraat 50, 7102CC Winterswijk

Faillissement
Vrijdag 14-11-2025
Tinbergenstraat 16, 7102JL Winterswijk

Binnenkijken bij
Vrijdag 14-11-2025
Merelstraat 10, 7102AN Winterswijk

Faillissement
Donderdag 13-11-2025
Tinbergenstraat 16, 7102JL Winterswijk

Binnenkijken bij
Dinsdag 11-11-2025
Crocusstraat 31, 7102CV Winterswijk

Binnenkijken bij
Dinsdag 11-11-2025
Misterweg 63B, 7102BE Winterswijk

Direct een e-mail ontvangen bij nieuwe meldingen in deze regio?

Meld je dan GRATIS aan voor de Oozo Alert service voor Winterswijk-Zuidwest

Instellen

Meer nieuws in Winterswijk-Zuidwest

Weten hoe eenvoudig het is om af te vallen? Zonder pillen en smeersels en zonder je in het zweet te werken!
Kijk op eenvoudig-afvallen.nl

© 2012 - 2025 OOZO.nl - info@oozo.nl - Gegevens verwijderen? | Disclaimer | Privacy statement