Woning Nederheide 20 Woensdrecht

Nederheide 20, 4634TJ Woensdrecht

Ontvang updates voor Hoogerheide-Noord

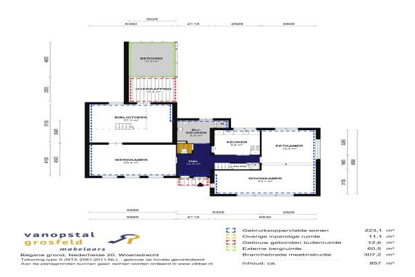
Het adres van deze woning uit 1960 is Nederheide 20 te Woensdrecht. Het pand heeft een oppervlakte van 223m² en een perceeloppervlakte van 1039m² en heeft 7 kamers kamers waarvan 4 slaapkamers. De geschatte waarde van deze woning is € 439.000.

Bekijk alle woningen in Hoogerheide-Noord

Gegevens van Eengezinswoning, vrijstaande woning

Bouwjaar
1960
Geschatte waarde
€ 439.000
Oppervlakte
223 m2
Inhoud
857 m3
Aantal kamers
7 kamers
Slaapkamers
4
Badkamers
1 badkamer en 1 apart toilet
Soort bouw
Bestaande bouw
Eigendomssituatie
Volle eigendom
Ligging
Aan rustige weg
Tuin
Tuin rondom

Voorzieningen in de buurt

Boodschappen0,9 km
Grote supermarkt0,9 km
Cafetaria0,9 km
Restaurant0,8 km
Huisarts0,9 km
Ziekenhuis7,5 km
Kinderdagverblijf0,6 km
BSO0,9 km
Alle voorzieningen in Hoogerheide-Noord

Binnenkijken bij Nederheide 20 te Woensdrecht

Meer meldingen in deze omgeving

Binnenkijken bij
Donderdag 22-1-2026
Antwerpsestraatweg 10, 4631NL Hoogerheide

112 melding
Woensdag 21-1-2026 om 14:14
Antwerpsestraatweg, 4631NL Hoogerheide

Binnenkijken bij
Woensdag 21-1-2026
de Narcis 14, 4631AE Hoogerheide

Nieuw bedrijf
Januari 2026
op den Duyn 51, 4631MN Hoogerheide

Binnenkijken bij
Vrijdag 16-1-2026
de Eik 18, 4631AT Hoogerheide

Nieuw bedrijf
Januari 2026
de Jasmijn 9, 4631AX HOOGERHEIDE

112 melding
Woensdag 31-12-2025 om 09:52
De Eik, 4631AT Hoogerheide

112 melding
Zaterdag 27-12-2025 om 15:16
Zandfort, Hoogerheide

Direct een e-mail ontvangen bij nieuwe meldingen in deze regio?

Meld je dan GRATIS aan voor de Oozo Alert service voor Hoogerheide-Noord

Instellen

Meer nieuws in Hoogerheide-Noord

Weten hoe eenvoudig het is om af te vallen? Zonder pillen en smeersels en zonder je in het zweet te werken!
Kijk op eenvoudig-afvallen.nl

© 2012 - 2026 OOZO.nl - info@oozo.nl - Gegevens verwijderen? | Disclaimer | Privacy statement