Woning Cameronlaan 6 Hoogerheide

Cameronlaan 6, 4631NW Hoogerheide

Ontvang updates voor Hoogerheide

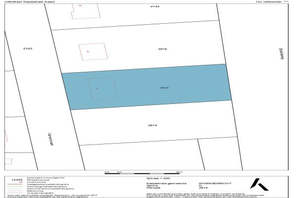
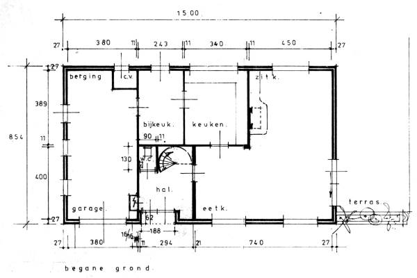
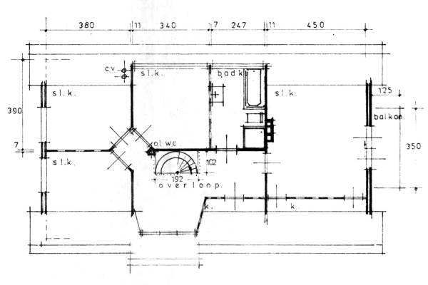
Het adres van deze woning uit 1984 is Cameronlaan 6 te Hoogerheide. Het pand heeft een oppervlakte van 165m² en een perceeloppervlakte van 1364m² en heeft 5 kamers kamers waarvan 4 slaapkamers. De geschatte waarde van deze woning is € 475.000.

Bekijk alle woningen in Hoogerheide

Gegevens van Villa, vrijstaande woning

Bouwjaar
1984
Geschatte waarde
€ 475.000
Oppervlakte
165 m2
Inhoud
630 m3
Aantal kamers
5 kamers
Slaapkamers
4
Badkamers
1 badkamer en 1 apart toilet
Soort bouw
Bestaande bouw
Eigendomssituatie
Volle eigendom
Ligging
Aan rustige weg en in woonwijk
Tuin
Achtertuin en voortuin
Achtertuin
950 m² (38m diep en 25m breed)

Voorzieningen in de buurt

Boodschappen0,4 km
Grote supermarkt0,5 km
Cafetaria0,4 km
Restaurant0,4 km
Huisarts0,9 km
Ziekenhuis8,5 km
Kinderdagverblijf0,6 km
BSO0,7 km
Alle voorzieningen in Hoogerheide

Binnenkijken bij Cameronlaan 6 te Hoogerheide

Meer meldingen in deze omgeving

Binnenkijken bij
Donderdag 19-3-2026
Ossendrechtseweg 85, 4631BB Hoogerheide

112 melding
Zondag 15-3-2026 om 16:22
Hoogerheide

Binnenkijken bij
Zondag 15-3-2026
Schapendreef 28, 4631BL Hoogerheide

112 melding
Zaterdag 14-3-2026 om 22:12
Kamerlingh Onnesstraat, Hoogerheide

112 melding
Zaterdag 14-3-2026 om 18:57
Kamerlingh Onnesstraat, Hoogerheide

112 melding
Zaterdag 14-3-2026 om 18:51
Kamerlingh Onnesstraat, Hoogerheide

112 melding
Zaterdag 14-3-2026 om 18:51
Kamerlingh Onnesstraat, 4631GS Hoogerheide

112 melding
Zaterdag 14-3-2026 om 18:51
Kamerlingh Onnesstraat, Hoogerheide

Direct een e-mail ontvangen bij nieuwe meldingen in deze regio?

Meld je dan GRATIS aan voor de Oozo Alert service voor Hoogerheide

Instellen

Meer nieuws in Hoogerheide

Weten hoe eenvoudig het is om af te vallen? Zonder pillen en smeersels en zonder je in het zweet te werken!
Kijk op eenvoudig-afvallen.nl

© 2012 - 2026 OOZO.nl - info@oozo.nl - Gegevens verwijderen? | Disclaimer | Privacy statement