Woning Dammolen 52 Harmelen

Dammolen 52, 3481AN Harmelen

Ontvang updates voor Harmelen-Zuid (dorp)

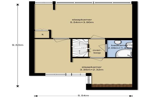
Het adres van deze woning uit 1974 is Dammolen 52 te Harmelen. Het pand heeft een oppervlakte van 121m² en een perceeloppervlakte van 134m² en heeft 4 kamers kamers waarvan 3 slaapkamers. De geschatte waarde van deze woning is € 239.000.

Bekijk alle woningen in Harmelen-Zuid (dorp)

Gegevens van Eengezinswoning, tussenwoning (hofjeswoning)

Bouwjaar
1974
Geschatte waarde
€ 239.000
Oppervlakte
121 m2
Inhoud
423 m3
Aantal kamers
4 kamers
Slaapkamers
3
Soort bouw
Bestaande bouw
Eigendomssituatie
Volle eigendom
Ligging
Aan rustige weg en in woonwijk
Tuin
Achtertuin
Achtertuin
40 m² (8m diep en 5m breed)

Voorzieningen in de buurt

Boodschappen0,7 km
Grote supermarkt0,7 km
Cafetaria0,7 km
Restaurant0,8 km
Huisarts0,7 km
Ziekenhuis4,9 km
Kinderdagverblijf0,6 km
BSO0,7 km
Alle voorzieningen in Harmelen-Zuid (dorp)

Binnenkijken bij Dammolen 52 te Harmelen

Meer meldingen in deze omgeving

Binnenkijken bij
Zaterdag 29-11-2025
Stadhoudershof 59, 3481HW Harmelen

Binnenkijken bij
Vrijdag 21-11-2025
Dammolen 124, 3481AP Harmelen

Nieuw bedrijf
November 2025
Prinsenhof 3, 3481HA Harmelen

Binnenkijken bij
Dinsdag 18-11-2025
Stadhoudershof 12, 3481HT Harmelen

Binnenkijken bij
Zaterdag 15-11-2025
Paltrokmolen 9, 3481AA Harmelen

Nieuw bedrijf
November 2025
Beatrixlaan 19, 3481CD Harmelen

Binnenkijken bij
Dinsdag 11-11-2025
Statenhof 16, 3481KH Harmelen

Binnenkijken bij
Dinsdag 11-11-2025
Batestein 13, 3481BD Harmelen

Direct een e-mail ontvangen bij nieuwe meldingen in deze regio?

Meld je dan GRATIS aan voor de Oozo Alert service voor Harmelen-Zuid (dorp)

Instellen

Meer nieuws in Harmelen-Zuid (dorp)

Weten hoe eenvoudig het is om af te vallen? Zonder pillen en smeersels en zonder je in het zweet te werken!
Kijk op eenvoudig-afvallen.nl

© 2012 - 2025 OOZO.nl - info@oozo.nl - Gegevens verwijderen? | Disclaimer | Privacy statement